Toelichting bureau Ira Koers en studio Roelof Mulder | Beeld Max Hart Nibbrig
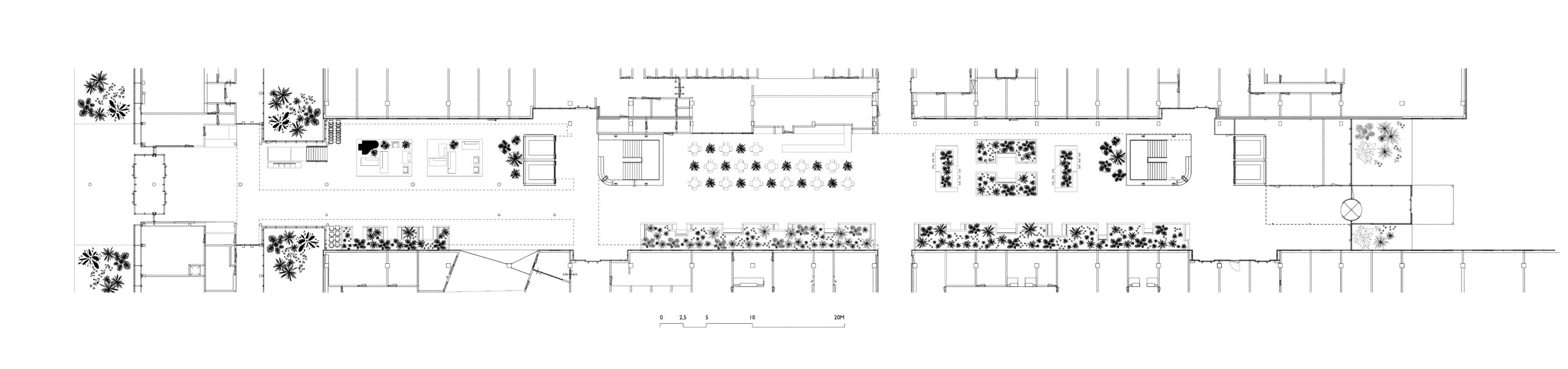
De ruime binnenstraat met straatlantarens, een plantsoen, paviljoens, een brievenbus en parkbankjes is een weelderige ruimte ingericht om snel van A naar B te gaan maar niet om lang in te verblijven. Wachten op een afspraak voor een poli of behandeling hoeft door digitale afspraken niet meer op de afdeling zelf en kan elders in het gebouw plaatsvinden. Een van de veranderingen met ruimtelijke consequenties en mogelijkheden. De centrale hal vervangt de klassieke wachtkamer bij de polikliniek.
De nieuwe hal houdt de heldere routing maar krijgt er sluiproutes bij met diverse verblijfsplekken tussen weelderig groen. De hal wordt er voor vrij gemaakt door cafetaria met winkel, het patiënten servicepunt en de kapper in de blauwe plint op te nemen. Het summiere groen langs de gevels wordt vergroent en grond opgehoogd met terrazzo tuinwanden plus bamboe zitplekken in het groen. De beplanting geeft de kamers aan de hal privacy, en de bovengelegen verdiepingen zicht op luw groen.

De hal is na de jaren 80 door diverse modes en zorgopvattingen dichtgegroeid. Terugsnoeien tot de kern van Tennekes’ architectuur was een eerste stap. Wat tevoorschijn kwam was zo waardevol dat we met die kwaliteiten en materialen door konden door bouwen. De bestaande groenstrook bleek geen bodem te hebben wat beeldbepalende uitbundige beplanting mogelijk maakte.
Door de hal intensief als verblijfsruimte te gebruiken is elders in het gebouw ruimte bespaart. De zoveelste uitbreiding kon worden voorkomen: slim ruimtegebruik, niet uitbreiden en zo min mogelijk slopen. Met de groene impuls en de wandeling door hal en over het vergroende terrein is preventief ingezet op de duurzaamheid van de gezondheidzorg: een gezonder mens. Het is maar één onderdeel van de serieuze duurzaamheidsagenda waarvoor Dijklander een Bronzen duurzaamheid certificaat ontving.

Na de fusie met een ander streekziekenhuis had dit gebouw als belangrijke publieke plek in Purmerend een nieuw verhaal nodig. Samen met beleidsmakers, zorgverleners en vooral het gebouw zelf werd duidelijk dat de binnenstraat, ingericht als verkeersruimte, een gastvrije en groene verblijfsruimte kon worden. Hiervoor is ruim te tijd genomen en werden medewerkers en bezoekers betrokken.
De nieuwe groene binnentuin loopt door naar buiten over een nieuwe verhoogde dijk met dezelfde zitjes tussen het groen als binnen in de hal. Vanaf de dijk is een wandelpad aangelegd dat om het gebouw slingert tussen het vergroende parkeerterrein met wateropvang, onder bomen en langs de rietkragen van het Gors. Het buiten terrein wordt dit voorjaar opgeleverd.



























