Toelichting LEVS architecten | Beeld Ossip van Duivenbode
De alzijdige, metropolitane toren van 80 meter hoog heeft een sportveld op het dak en een gemeenschappelijke ontmoetingsruimte op de begane grond. In 22 maanden tijd bouwde VORM bouw de vrijwel volledig uit prefab elementen bestaande toren op.
Uitzicht over een nieuwe stadswijk
Tussen de centrale as van de Mahlerlaan en de parallelle ringweg A10 ontstaat een U-vormig bouwblok dat een ruime gemeenschappelijke binnentuin omarmt. Binnen het blok staan drie torens. Langs de noordzijde staan de twee torens van woongebouw De Puls, van VMX Architects en MVSA architects. Langs de zuidzijde is de 80 meter hoge Stepstone de derde toren. Elk heeft een eigen karakter, duidelijk reagerend op de twee anderen. Op grotere schaal zet dit het dambordpatroon van versprongen hoogbouw voort, dat zo karakteristiek is voor de Zuidas.

Een tijdloos stedelijk karakter
Stepstone heeft een alzijdig en stedelijk karakter. Het ontwerp speelt op subtiele wijze met de klassieke opbouw van plint, onderbouw, bovenbouw en kroon. Dat resulteert in een lichte, open woontoren met panoramische balkons die als een voile om het volume heen zijn gedrapeerd. Door variaties in het patroon in de gevel ontstaat een samenhangend geheel dat toch nooit eentonig wordt. Het combineert de statigheid van een stedelijke toren met de dynamiek van een levendige woonbuurt. Hiertoe werken de lichtgrijze kaders van de prefab betonelementen samen met groene betonvlakken van alpengroen grind en Noors marmer. Het is een wisselend spel van vlakken dat door licht en lucht versterkt zal worden.
Sporten en ontmoeten dicht bij huis
Aan de straat verbindt een dubbelhoge doorgang de voorzijde met de binnentuin, via een gemeenschappelijke ontmoetingsruimte voor bewoners. De gedeelde ruimte is een bijzondere toevoeging. Bewoners kunnen er vrij gebruik van maken om elkaar te ontmoeten, bijeenkomsten te organiseren of om te werken. Op het dakterras kan gesport worden met spectaculair uitzicht. De gevel eindigt hier aan de voorzijde in een meer formele, rechte kroon, terwijl deze aan de achterzijde juist trapsgewijs en versprongen afloopt om een zachtere overgang naar het binnenterrein te maken.

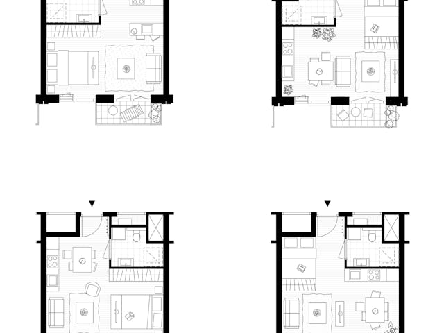
De compacte plattegrond
Met 216 sociale huurwoningen voor starters onder de 28 jaar is dit een zeer bijzonder woonsegment voor deze locatie. Er is veel aandacht besteed aan een slimme indeling van de appartementen, variërend van 25 tot 60 vierkante meter, met maisonnettes in de kroon. Bovendien hebben bijna alle appartementen een balkon, ondanks het feit dat dit niet vereist is. Met het oog op de toekomst zijn de constructie en installaties zo ontworpen dat het mogelijk is de appartementen te transformeren naar grotere woningen.

























