Toelichting Jaren '30 architect | Beeld Tom Philip Janssen
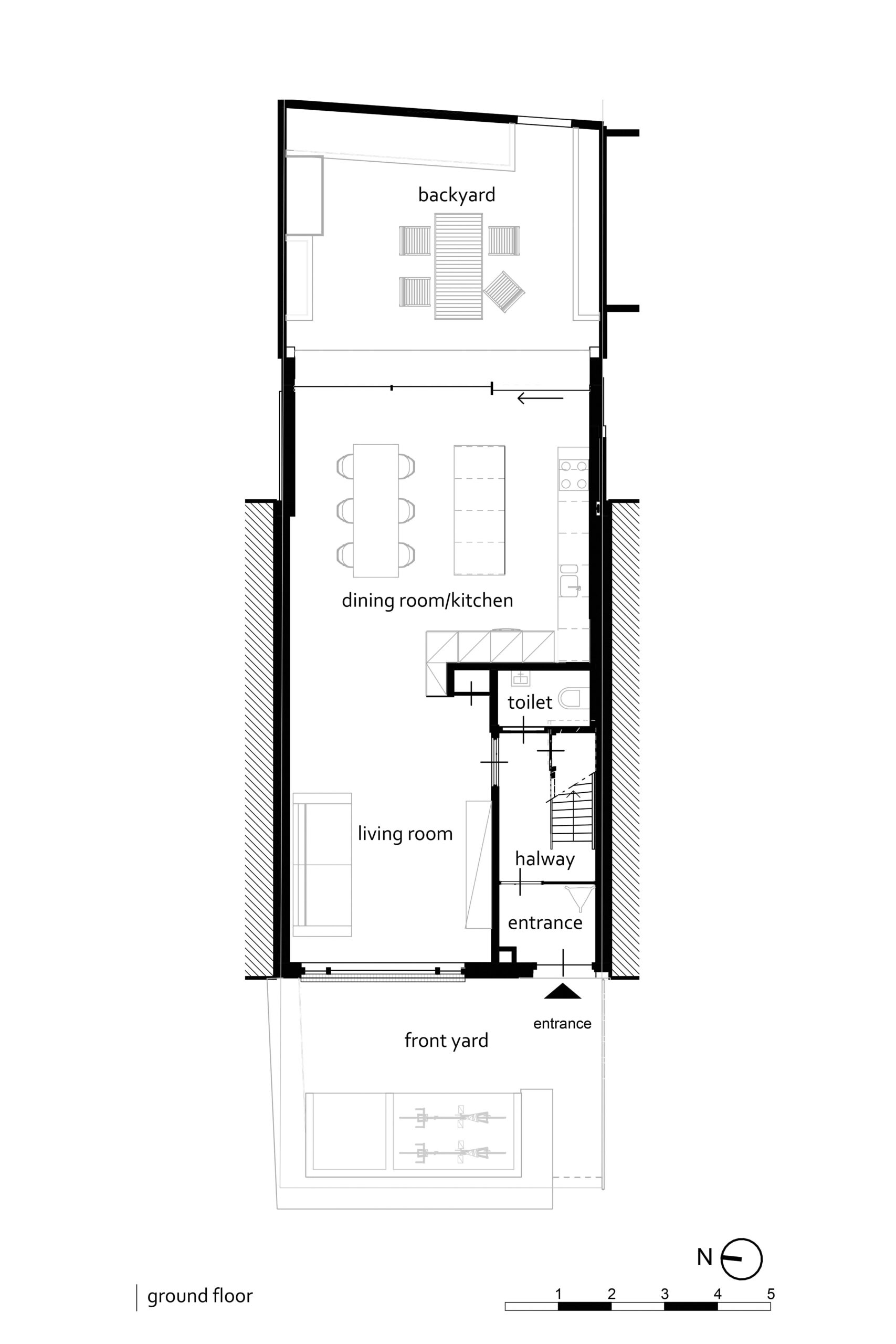
Deze renovatie benadrukt de verbinding met de achtertuin. De zwarte aluminium schuifpui en de strakke dakrand zorgen niet alleen voor meer daglicht in het interieur, maar geven de uitbouw ook een fraai, modern uiterlijk. In de woonkeuken verdwijnt de dakrand naadloos achter het plafond. Het stucwerk loopt aan beide zijden naar buiten door, waardoor een visueel opvallend oneindig effect ontstaat. Dit geeft een directe verbinding met de tuin. De bewuste keuze om de oude stenen schuur te verwijderen en te kiezen voor een bescheidener aanbouw brengt de ruimte tussen huis en tuin in balans.

Door het overvloedige daglicht valt de witte keuken nog meer op. De grijze gietvloer loopt door van de keuken naar de hal. De deur naar de hal is vervangen door een zwarte aluminium deur met glas, waardoor het zwarte aluminium weer terugkomt. De lichte en ruimtelijke sfeer zet zich voort in de hal, waar alle ruimtes naadloos op elkaar aansluiten met dezelfde gietvloer.
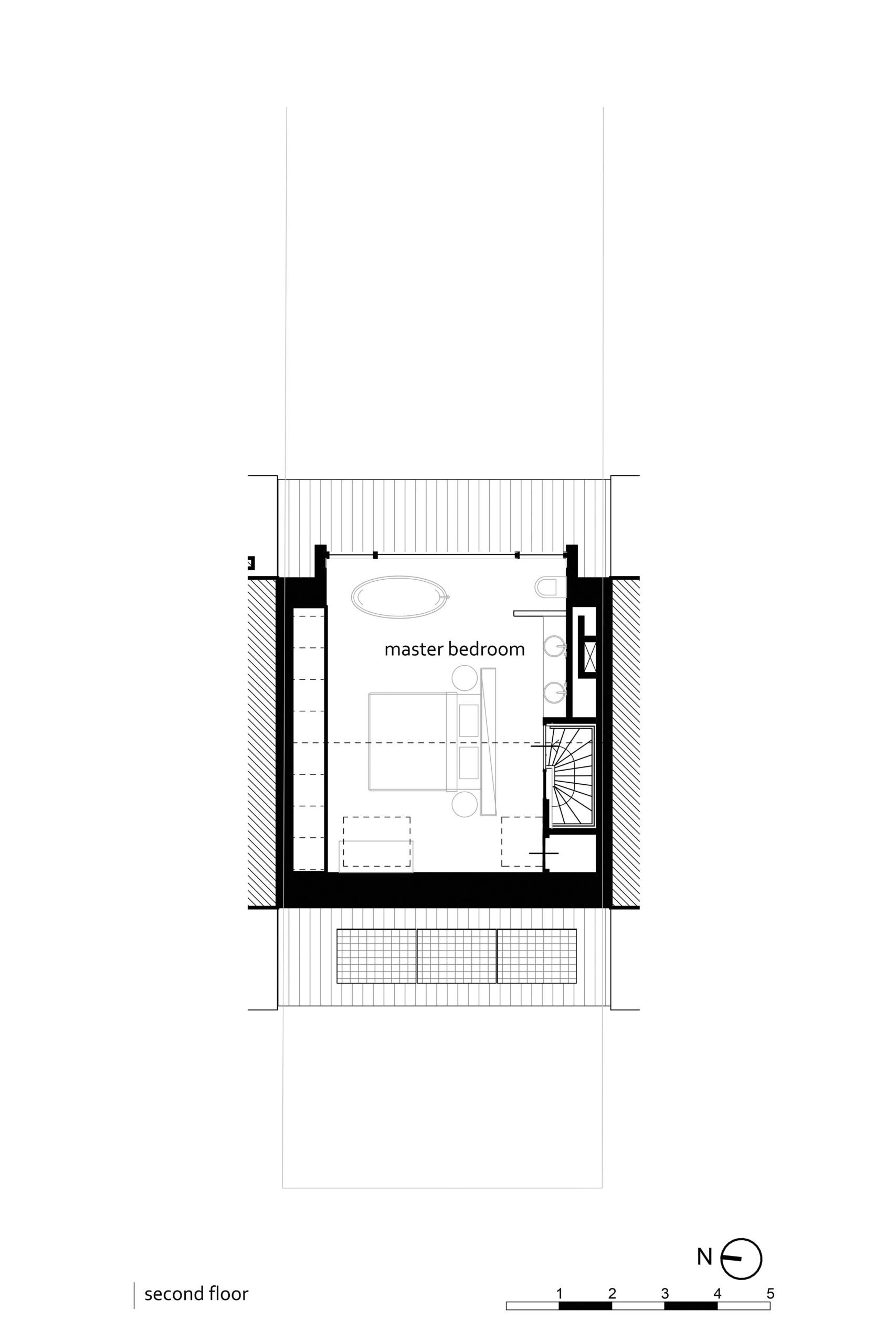
De bestaande zolder is verbouwd tot een grote slaapkamer met een eigen badkamer. De kamer is voorzien van op maat gemaakte kasten, een vrijstaand bad, een grijze gietvloer en zwarte aluminium raamkozijnen. Om het vloeroppervlak te vergroten en meer natuurlijk daglicht te introduceren is er een moderne dakkapel toegevoegd en is de ruimte opengewerkt tot aan de nok. Dit zorgt voor veel licht en ruimte in de slaapkamer.

De originele houten dakbalken zijn kaal geschuurd, wat een warm tintje toevoegt. De schuine lijnen van de houten balken introduceren een dynamisch element in de ruimte. Het toepassen van dezelfde materialisering en kleurstelling in de gehele woning zorgt voor een mooie samenhang tussen de verschillende verdiepingen.
























































