Toelichting KAS Architectuur & Stedenbouw | Beeld Sebastian van Damme
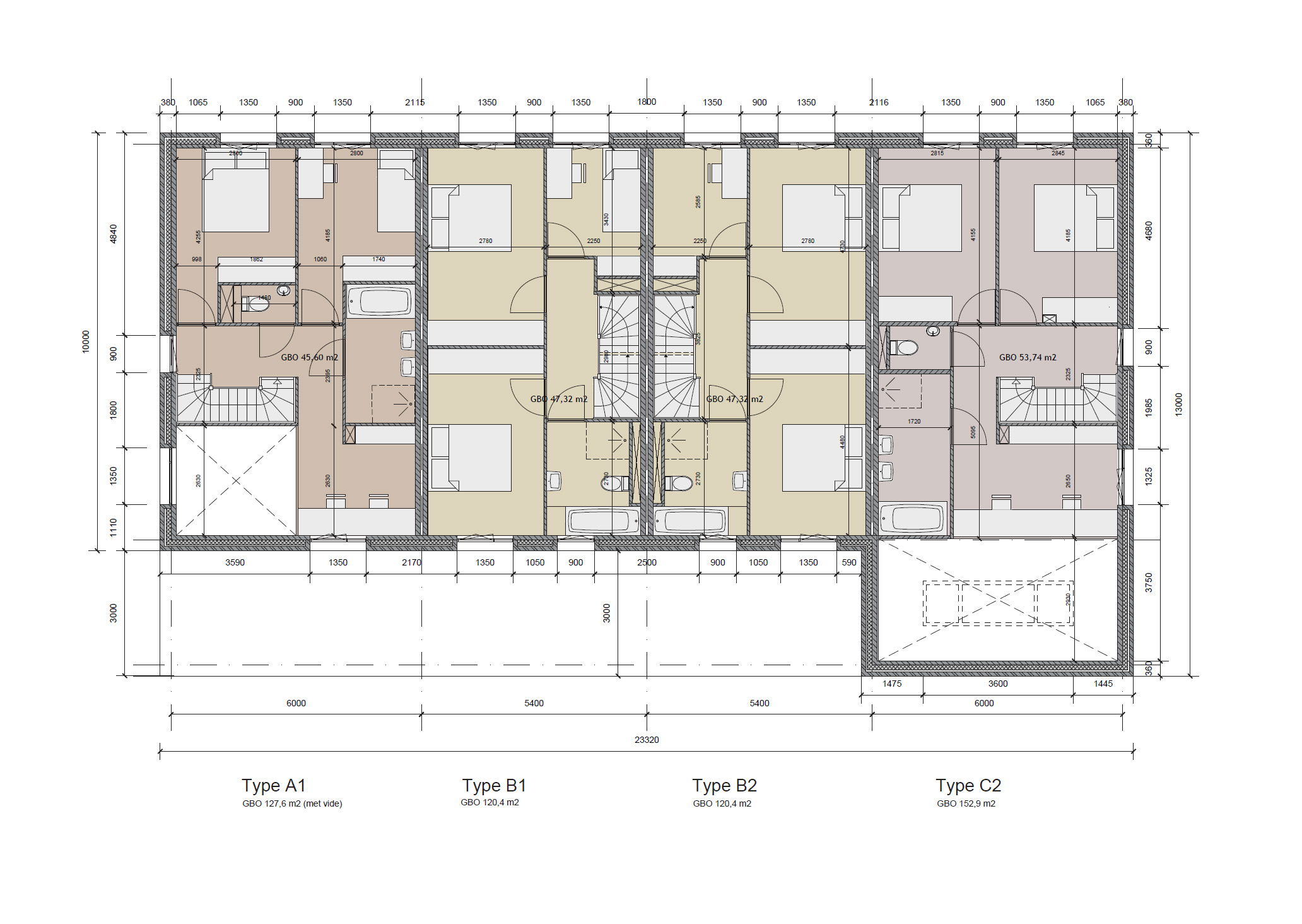
De woningen van Wilgenhof nabij de Biesbosch zijn gelegen in een autovrij hof waar kinderen vrij kunnen spelen en waar bewoners onder de veranda buiten kunnen zitten en het buurtgevoel wordt gestimuleerd. Een ensemble van 30 woningen omkaderen het hof en zorgen voor een natuurlijke interactie tussen binnen en buiten. Een veranda van 3 meter breed met lamellen als intuïtief en gevoelig filter vormt de overgangszone tussen privé en openbaar.

De 6 rijen van woningen zijn asymmetrisch vormgegeven en speels aan het hof geplaatst, waarbij twee rijen iets meer in het hof geschoven zijn. Op de twee plekken waar de rijen inschuiven wordt dit gemarkeerd door een overhoekse oriëntatie van de hoekwoningen middels een breed hoekraam. Door dit spel ontstaan spannende hoekverdraaiingen op ooghoogte en samenhang. Maar ook een fijne maat en schaal van het hof, die goed past bij het geborgen karakter van de woningen.
De veranda zorgt voor een extra buitenruimte, een verlenging van de leefruimte. De dubbelhoge ruimte wordt deels ingekaderd door lamellen, die zorgen voor privacy en zonwering. Een fijne plek om te zitten in warme zomers. Bij de eerste lentezon en zonnige herfst een plek waar juist de zon binnentreedt, dit doordat de lamellen slim onder een hoek geplaatst zijn. Door de oost-west oriëntatie van de woningen ontstaat een spannend en hoogwaardig spel van licht en schaduw in de veranda en binnen in de woning. Deze is de hele dag door verschillend, een beleving op zich.

De vormgeving van de lamellen van de veranda volgt de hellingshoek en daklijn van de woningen, op die manier ontstaat er een architectonisch geheel. De kleuren zijn ingetogen met een lichte baksteen, lichte voeg, antraciet dak en lamellen. Voor de veranda is een legpatroon van een kloostergang gekozen, een donkerrode steen die aansluit bij de klinkers van het hof, en zijn tussen de woningen mee gemetselde bloembakken aangebracht. De kleuren zijn in samenhang met de gebouwen uit directe omgeving gekozen. Voor de gevelopeningen zijn diepe neggen toegepast met een Belgisch hardstenen onderdorpel.
De woningen zijn qua duurzaamheid ontworpen op de toekomst. Ze zijn van het gas af en hebben een EPC die bijna nul is: 0,25. Elke woning beschikt over een warmtepomp en zonnepanelen, die geïntegreerd zijn in het dakvlak.











































