Toelichting Bloot Architecture | Foto's Jeroen Musch
Vanuit klassiek oogpunt wordt westerse architectuur gedomineerd door steen en Aziatische architectuur door hout. In de Aziatische architectuur is er, mede door het klimaat, vaker sprake van materialen die van binnen naar buiten doorlopen. De architectuur en de functies zijn minder strak gedefinieerd en meer intuïtief. Westerse architectuur is meer afgebakend, strakke lijnen en alles heeft een functie.
De hoekwoning is ontleed en onderdeel geworden van een ruimtelijke plan waarin functies in elkaar overlopen en verwisselbaar zijn. Alleen de keuken die verspreid is over drie elementen in de ruimte ligt vast. Het materialenpallet bestaat uit hout beton en staal, echter van elk materiaal zijn er weer verschillende soorten en texturen. Dit rijke pallet geeft warmte, diepgang en diversiteit aan het ontwerp.

De voorgevel van de uitbouw gaat mee in het spel van de plasticiteit en de schaal van de bestaande woning. De materialisatie en detaillering contrasteert met de bakstenen gevel, maar zorgt wel voor een samenhangend materialenpallet. Aan de achterzijde is de uitbouw monumentaal van opzet. Er is veel hoogte gecreëerd door het verlagen van de uitbouw. De verlaging maakt het ontwerp daarnaast ook speels met de niveauverschillen en de trap.
De prefab betonnen façade loopt door naar binnen in de vorm van een betonnen grid, maar loopt ook door in de met zitranden omringde verlaging in de tuin. Dit zorgt voor een parkachtige setting met overal plek om te zitten. De betonnen structuur die buiten en binnen doorloopt komt voort uit het ritme en de draagstructuur van de bestaande woning. Dit maakt dat de verbouwing en uitbreiding in zijn totaliteit werken als een integraal geheel.

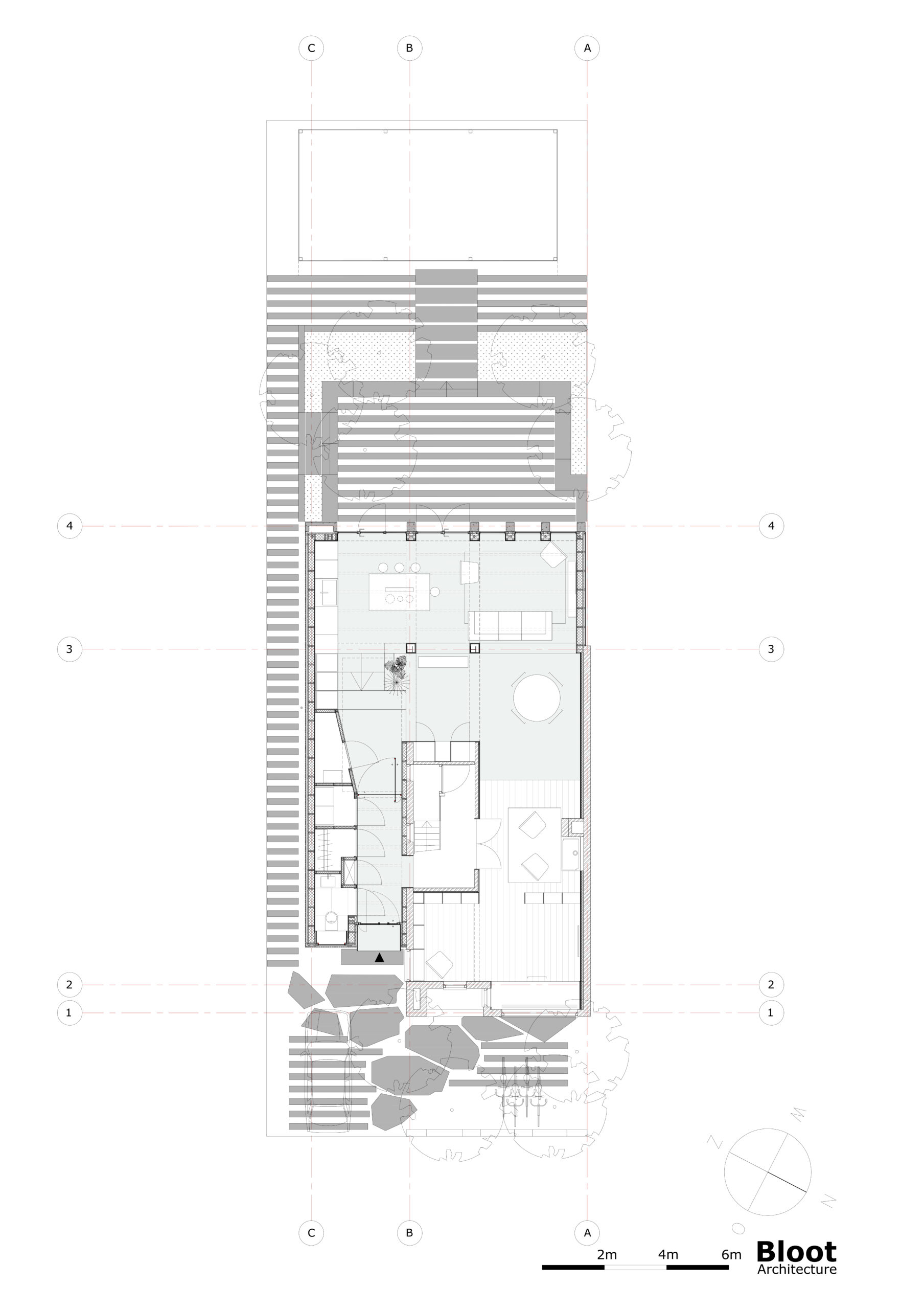
De entree van de woning bestaat uit een verzinkte stalen nis die door de houten gevel van de uitbouw steekt. In de nis zit een stalen taatsdeur die dezelfde breedte en hoogte als de hal heeft. Deze deur is ook vervaardigd uit het rauwe verzinkte staal. Eenmaal door de poort kom je binnen in een nieuwe ruime hal.
Deze hal wordt gedefinieerd door aan een zijde de oude bestaande wand van het huis. De bestaande wanden van het huis die om het trappenhuis liggen, zijn zo bewerkt dat ze nu als een houten volume in de ruimte staan. Aan de andere zijde van de hal begeleidt een nieuwe houten wand de gebruiker vanaf de entree tot aan de achterzijde van het huis. In deze houten wand zitten alle ondersteunende functies waaronder toilet, garderobe, techniek, opslag en keuken.
Vanuit de hal komt je terecht in het nieuwe hart van het huis. Onder het grote dakraam in de uitbouw van het huis, heeft zich het nieuwe hart van het huis gevormd. Hier is het licht, er is groen en de grote prefab betonnen traptreden bieden een plek om te zitten. De afwezigheid van een duidelijke functie voor deze ruimte, maakt de ruimte juist zo krachtig. Het zorgt daardoor voor een verstilling in de ruimte en dat is een verrijking voor het huis.









































