Toelichting Hoogeveen architecten | Beeld Arjen Hoogveen
De opgave was in feite een grondige vernieuwing met indien mogelijk een bescheiden uitbreiding. Het gebouw was zowel bouwkundig als functioneel en architectonisch versleten. De wens van de gebruikers was meer functionaliteit, zichtbaarheid en gastvrijheid en dat in een prettige lichte sfeer.
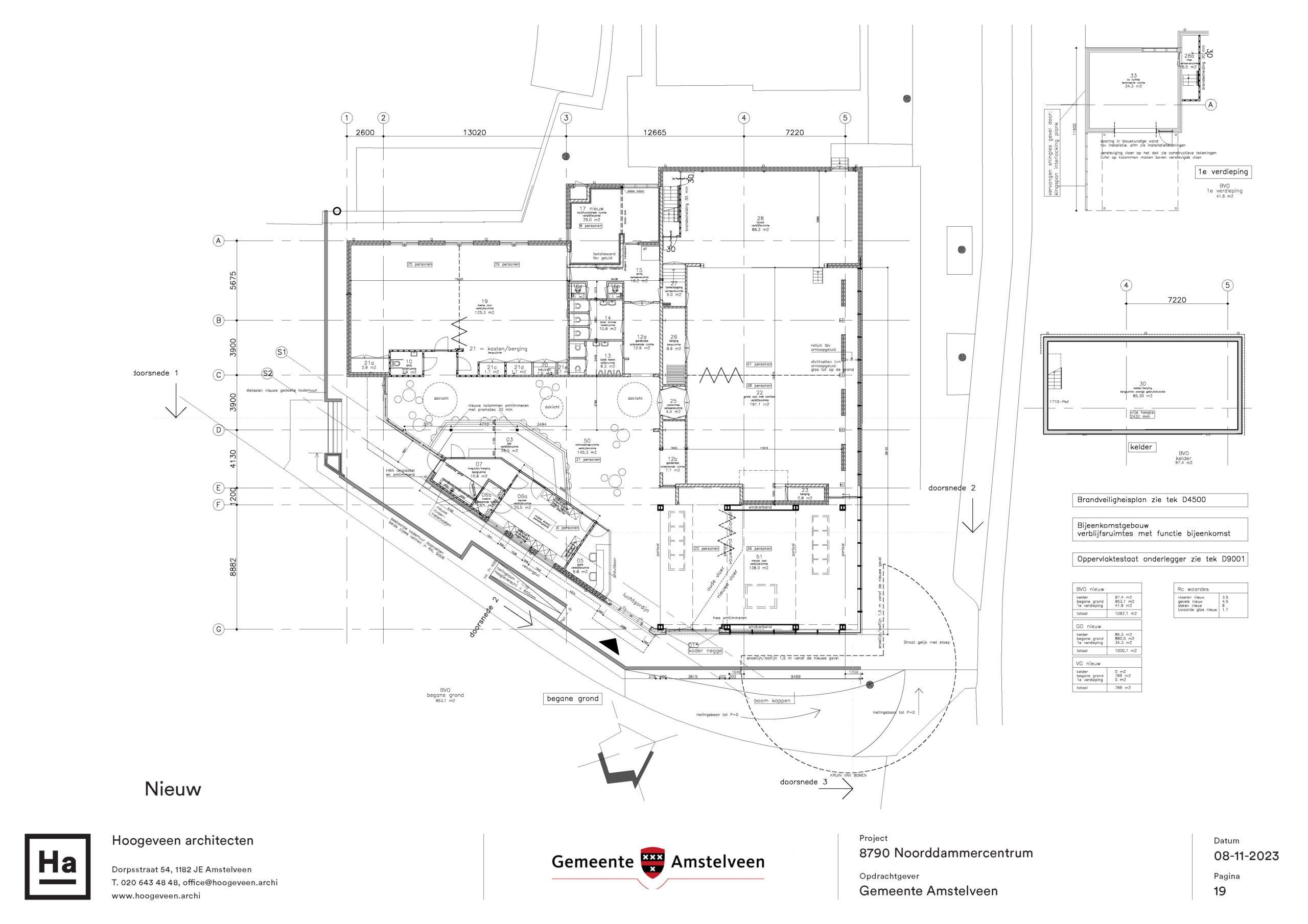
De bar, ontmoetingsruimte en de keuken moesten worden uitgebreid en gemoderniseerd. En als het mogelijk was een kloppend hart in de vorm van een huiskamer/multifunctionele gezellige ruimte toevoegen.

Uit onze ontwerpstudie trokken we de conclusie dat de grootste winst in de ontsluiting lag. Door de entree centraal te projecteren is er nauwelijks verlies aan verkeersruimte en versterken alle functies elkaar. De grote zaal hebben we een omgang gegeven waardoor de zaal heel theatraal van beide zijden wordt ontsloten en ook dubbel gebruik mogelijk is.
Voor de architectuur en stedelijke inpassing van het vernieuwde gebouw hebben we ons laten inspireren door het oorspronkelijke nonnenschooltje uit 1924. De archetypische kap en de kap richting hebben we geïntroduceerd voor de nieuwe zaal en huiskamer. De kapvorm voegt zich veel beter in het dorp dan het huidige platte gebouw en de binnenruimte is speels en vertrouwd.
Voor de architectonische uitwerking hebben we een moderne interpretatie van de pastorie van de Urbanus kerk van architect Cuypers gemaakt.
De belijning en textuur van van onze aluminium gevel en kozijnen in combinatie met de twee zadeldaken brengen een subtiele stedelijke samenhang tot stand. Door vrijwel niet te slopen en de uitbreiding om de huidige gevels heen te vouwen fungeert deze niet alleen als gebruiksruimte maar tevens als verduurzamende isolerende schil.
Strategische aanpassingen in de ruimtelijke organisatie zorgen ervoor dat het bestaande casco volledig is geïntegreerd maar voelt als een sympathieke nieuwbouw met historische kwaliteit.
Tijdens de feestelijke Avond van de Architectuur de winnaars bekend gemaakt van de Architectuurprijs Amstelveen 2023 in de categorie woongebouwen en overige gebouwen. Er waren zeventien genomineerden. Een vakjury reikte de juryprijzen uit en wethouder Floor Gordon de publieksprijzen.





































