Toelichting 8A Architecten | Fotografie Luuk Kramer
In het begin van de 20e eeuw werd de bebouwing landinwaarts, van de dijken af, uitgebreid en verloor gemeente Krimpen aan den IJssel zijn agrarisch karakter. Op dit moment zijn er nog wel twee wijknamen die herinneren aan het meer agrarische verleden. Het westelijk gedeelte van Krimpen bestond vroeger voornamelijk uit korte landerijen (vanaf de dijk gezien) en het oostelijk gedeelte uit wat langere. De namen Kortland en Langeland herinneren nog aan deze tijd.
Kortland
Kortland is een wijk ten noorden van Krimpen, gebouwd in de jaren 60 en 70. De stedenbouwkundige opzet karakteriseert zich door de ruime opzet met ten opzichte van elkaar verschoven woningen en typisch functionalistische architectuur met verspringende gevels en boeiboorden. In het zuidwestelijke deel van Kortland ligt de Lansing, met meerdere geschakelde bungalows naast elkaar, die aan de achterkant uitkijken op het water. Voor één van deze bungalows heeft 8A een opbouw ontworpen.

Opgave
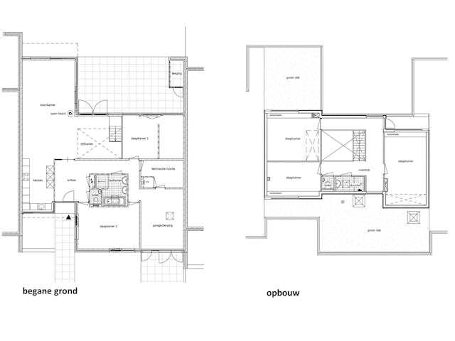
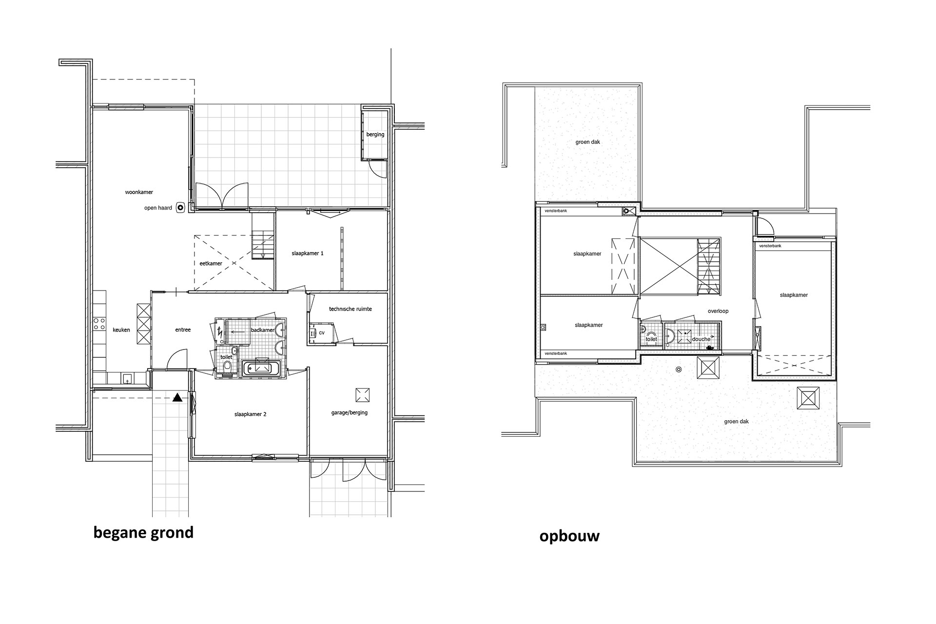
De opbouw is ontworpen voor een gezin met twee kinderen. De opgave was om de bungalow uit te breiden met een extra verdieping voor het creëren van twee grotere slaapkamers met eigen badkamer en wc voor de kinderen. Belangrijke eis hierbij was om de opbouw intern ruimtelijk te verbinden met de eetkamer beneden en veel licht en ruimtelijkheid toe te voegen.
Verschoven volumes
Uitgangspunt voor het ontwerp is het doorzetten van de bestaande structuur en kwaliteit van de bestaande bungalow in de opbouw, zonder deze letterlijk te kopiëren. De karakteristieke verschuivingen van ruimten in de plattegrond van de bungalow, die ook in de stedenbouwkundige structuur van de wijk is terug te vinden, is aanleiding geweest om de opbouw in drie verschoven volumes op te delen.
Tegelijkertijd maakt de opdeling de opbouw visueel kleiner. Ook de setback van de volumes aan zowel de voor- als de achterkant draagt hieraan bij. Het middelste volume vormt de kern van de opbouw met een badkamer, wc en ruime overloop met vide die via een bijzondere trap is verbonden met beneden. Aan beide kanten van de kern ligt een volume met de kinderslaapkamers en een logeerkamer. De drie volumes zijn ook in hoogte verschillend, waarbij de kern het hoogste is om de overloop extra licht en ruimtelijkheid te geven. Hierdoor valt de opbouw zo min mogelijk op om de bestaande bungalow zoveel mogelijk in ere te houden.

Gevels
Deze terughoudendheid wordt nog verder doorgevoerd doordat de gevels van de opbouw zijn uitgevoerd in wit stucwerk. De combinatie van liggende en staande raampartijen sluit aan op de bestaande architectuur, maar gedetailleerd zonder negge om de abstractie en soberheid van de opbouw te versterken. De drie liggende raamstroken van de slaapkamers hebben een dicht luik, dat naar buiten toe te openen is voor frisse lucht van buiten. De twee staande ramen creëren een doorkijk in de kern van de opbouw en verbinden de straat met de tuin.






















