Toelichting Maarten Plomp | Beeld MWA Hart Nibbrig
Op het terrein van het voormalig Sint Elisabeth ziekenhuis is de afgelopen jaren een hedendaags zorghofje tot stand gekomen. Jacqueline Bouts startte dit proces al in 2014 met de ontwikkeling van Xenia, het eerste jongeren hospice en logeerhuis van Nederland. In Xenia kunnen jongeren tussen de 16 en 40 jaar terecht voor intensieve-, medische- en palliatieve zorg. Tegelijkertijd is het ook een plek voor chronisch zieke jongeren om zichzelf te kunnen zijn en hun eigen dag in te vullen.
Met de bouw van de zorgwoningen wil Xenia antwoord geven op de veelvuldig geuite wens naar op maat gemaakte woningen voor jongeren met intensieve 24-uurszorgvraag. Het huidige aanbod van dit type woningen voor jongeren is namelijk beperkt, voldoet niet wanneer de ziekte verergert en sluit niet aan bij de belevingswereld van jongeren. De zorgwoningen geven de jongeren de kans op een normaal leven en garanderen een zorgaanbod die mee kan groeien met hun aandoening.
Het woonzorggebouw bezet een van de laatste vrije kavels in de westelijke straatwand van de Middelstegracht en volmaakt daardoor het tot voorheen open binnenhof tussen Hooi- en Middelstegracht. Het vrijstaande volume is zorgvuldig ingepast tussen twee monumenten, het Sint Elisabeth ziekenhuis (zuid), een ontwerp van architect Leo van der Laan, vader van Dom Hans van der Laan en een voormalige spinnerij (noord) en voegt zich door middel van een herkenbaar silhouet vanzelfsprekend in de stedelijke ruimte.
Alledaagse plek om te wonen
Met terughoudende architectuur, eenvoudige en zuiver toegepaste materialen wordt doelbewust door Elmar Koers en Maarten Plomp* een klinisch karakter vermeden en voorziet het de jongeren van een alledaagse plek om te wonen. De antraciete betonnen plint, nauwkeurig rood metselwerk, blanke aluminium kozijnprofielen, hardhouten voordeur en het keramische dak verlenen het gebouw zijn tijdloze en stedelijke karakter. De staande ramen in de voorgevel voegen zich in de logica van de neutrale binnenstedelijke straatgevel.
Richting het hof opent de gevel zich door het toepassen van genereuze Franse balkons, zodat een directe relatie met het gedeelde binnenhof kan ontstaan, waar bewoners, buren en mensen uit het hospice elkaar kunnen ontmoeten.
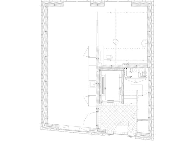
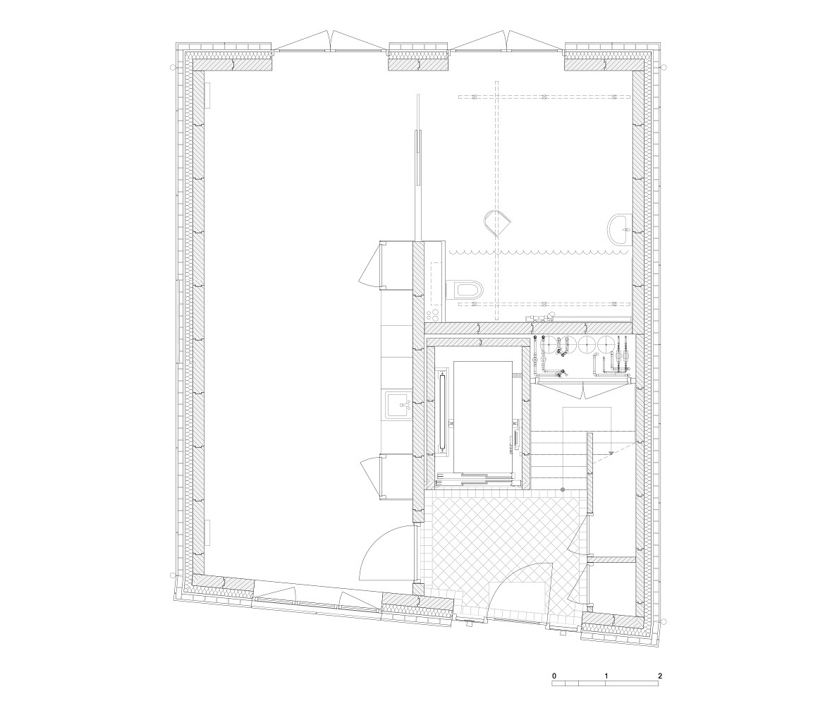
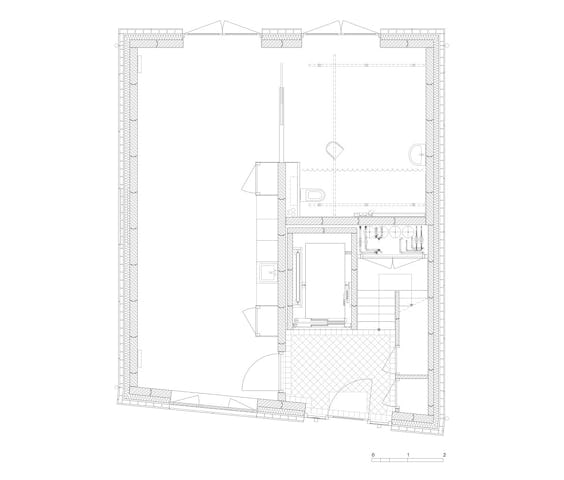
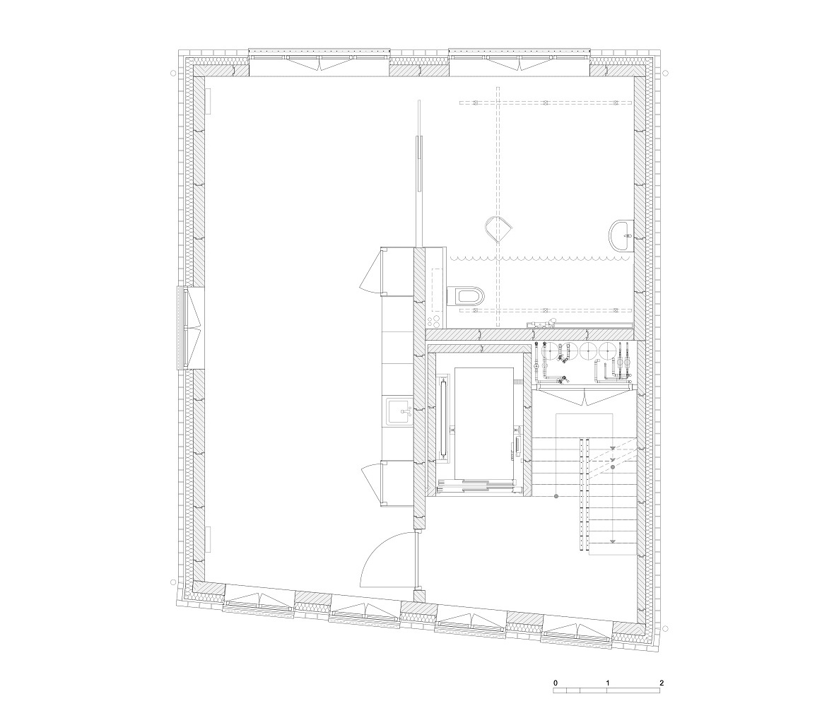
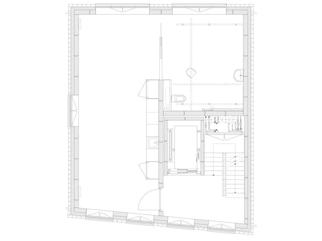
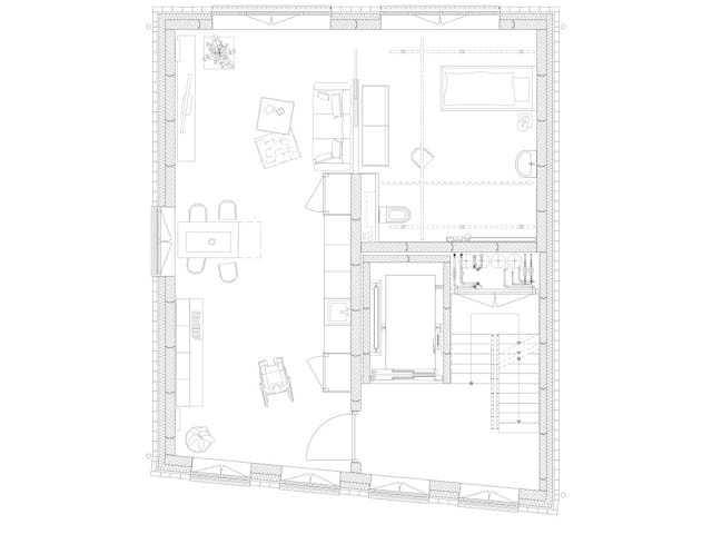
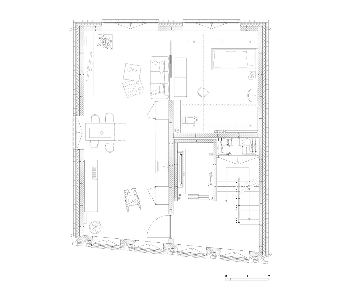
De efficiënte plattegrond is samen met de toekomstige bewoners door middel van een intensief participatief ontwerpproces tot stand gekomen. Het trappenhuis is bewust klein gehouden, de ruimte voor de lift is daarentegen (over)gedimensioneerd op de draaicirkel van een elektrische rolstoel. De keuken en open badkamer in de woning zijn strategisch geplaats om de ruimtes zo vrij en flexibel mogelijk in te kunnen delen en tegelijkertijd voldoende ruimte over te houden om te kunnen manoeuvreren van de bewoner en voor het verlenen van de nodige zorg. Een tillift aan het plafond van de slaapkamer biedt de mogelijkheid adequate zorg te kunnen leveren in de slaap- en badkamerzone.
Door middel van domotica kunnen de bewoners diverse elementen in de woning zelfstandig bedienen en zich eenvoudig door de woning en het gebouw bewegen. Het casco van de woning kan op verschillende manieren worden ingedeeld en eenvoudig omgebouwd voor een eventueel veranderende zorgvraag.



































































