Toelichting Hemaa Architectes | Beeld Sergio Grazia
In het ontwerp voor de school is de geschiedenis van de locatie gebruikt voor de materialen en morfologie: het hout van de vakwerkhuizen van het stadscentrum voor de glazen kozijnen en het raamwerk; de leisteen van de klokkentoren en het stadhuis om de gevels en het dak te bekleden en te beschermen.

De morfologie van de huizen en boerderijgebouwen op de site wordt opnieuw geïnterpreteerd, wat aanleiding geeft tot grote hedendaagse longères (longère is de naam voor een lange, smalle woning, zich ontwikkelend langs de as van zijn top, typisch bewoond door boeren en ambachtslieden en typerend voor de regio's van Bretagne en Normandië in het noordwesten van Frankrijk).
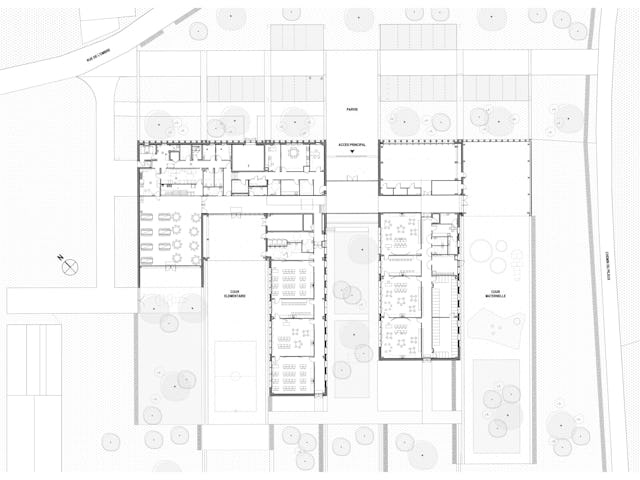
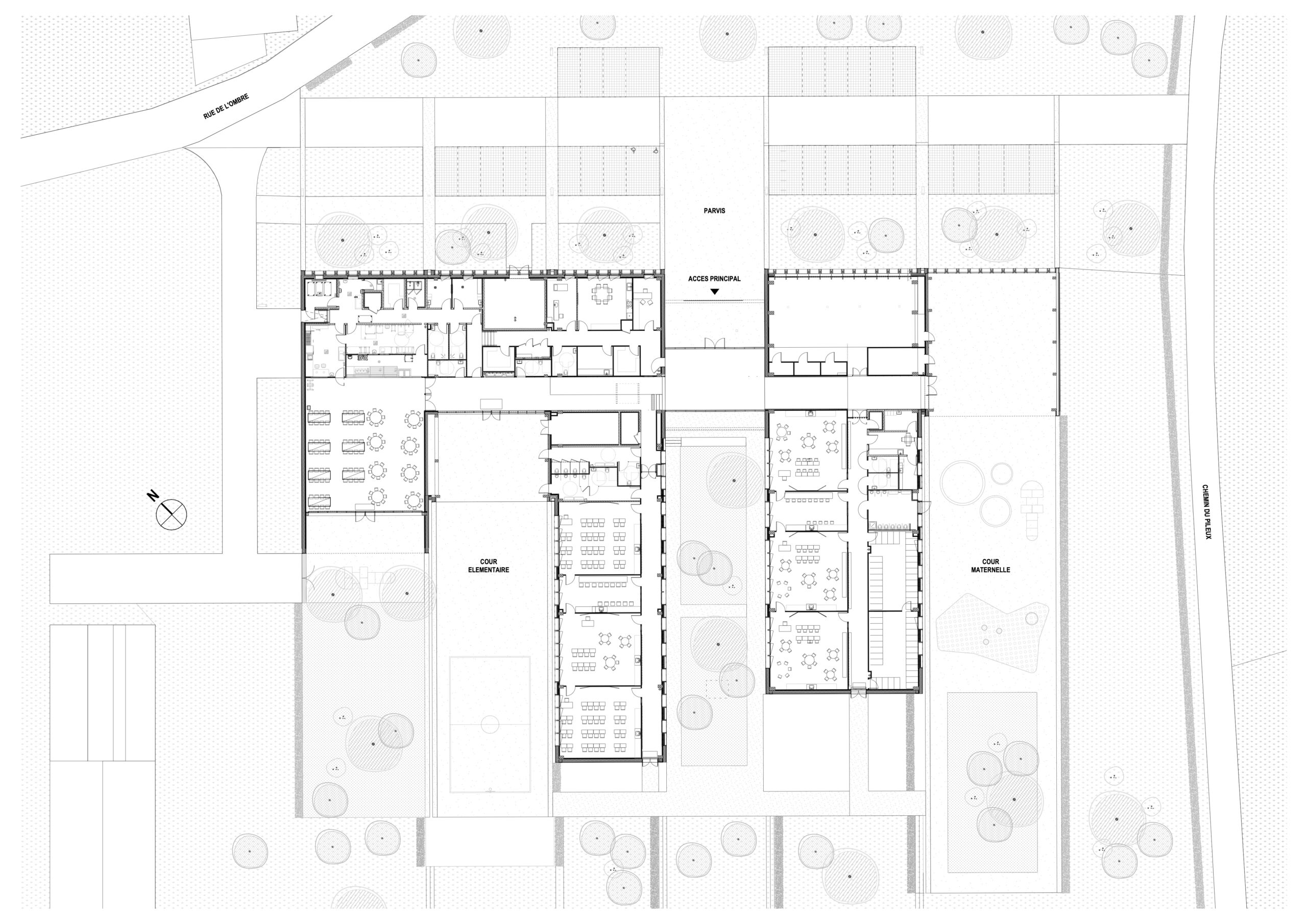
Geografie
De geografie van de site bepaalt de locatie van het project. De huizen worden ingevoegd volgens de contouren van het land en respecteren de natuurlijke bodem. Deze richtlijnen bakenen de speelplaatsen af, tekenen boomgaarden en worden valleien die regenwater verzamelen van de hele site om een aangelegd bassin eronder te voeden.
Anticiperen op de toekomst
Deze gelaagde organisatie anticipeert op de geplande groei van het dorp en de toekomstige uitbreiding van de school, waarbij elk huishouden de mogelijkheid heeft om uit te breiden. Met respect voor de oorspronkelijke indeling kunnen klaslokalen worden toegevoegd, de kantine, binnenplaatsen en binnenplaatsen worden uitgebreid en kan de apparatuur meer studenten en gebruikers huisvesten. De netwerken en brandveiligheidssystemen houden daarbij al rekening met deze mogelijke groei.

Het structurele systeem in portieken, door de totale afwezigheid van een tussenliggend lagerpunt, maakt deze toekomstige evolutie en een volledige modulariteit van het pand mogelijk. De gevels en het dak zijn opgebouwd uit modules die off-site voorgemonteerd zijn en een combinatie zijn van lucht-/waterdichtheid, isolatie en structuur. De stukken van 5x2 m, ontwikkeld in 3D met de timmerman, hebben het mogelijk gemaakt de bouwtijd te beheersen.
De bouw van de school maakt deel uit van een proces om de ecologische voetafdruk te verkleinen. Het gebruik van hout, leisteen, de integratie van fotovoltaïsche panelen en de afwezigheid van verbruik van fossiele brandstoffen voor de verwarming van de apparatuur maken het mogelijk om de ambitieuze E3C2- en BEPOS-niveaus te bereiken. Ten slotte werd de site volledig gebouwd met lokale materialen en bedrijven gevestigd











































