Toelichting derksen|windt architecten
Deze structuur is ingevuld met een open of dichte vulling; open met op zon en zicht georiënteerde schuifpuien, gesloten met verticale, lariks delen. De houten constructie is binnen en buiten in het zicht, waardoor in het hele huis het ritme van de structuur voelbaar is. Dit alles volgens een tot in de details doorgewerkte maatverhouding, waardoor er zowel binnen als buiten bijzondere en warme ruimtes voor de opdrachtgevers zijn gecreëerd.

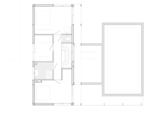
De opdrachtgevers wisten een mooi kavel aan een klein laantje vlak bij de duinen in Monster te kopen. Alles was nog open, van de plek van het huis op het kavel tot de bouwhoogtes en de ontsluiting. De wens van de opdrachtgevers was een huis te realiseren met échte materialen, verbonden met de omgeving. Van daaruit zochten de architecten een zo eerlijk mogelijke manier van omgaan met materiaal, richting, bezonning en zicht. Dat kwam samen in dit ontwerp.
Het als eerst gepresenteerde ontwerp is bijna letterlijk zo gerealiseerd. Ambitieuze keuzes als een constructie die het huis vormt, waarbij de vlakken van de gevel gevuld worden, waren al in de eerste maquette te zien. De moeilijkheid zat er dan ook in, onder andere door de strenge regelgeving in Nederland, dergelijke aansluitingen en details zo puur mogelijk te houden. Over elk detail moest een uitspraak gedaan worden om een simpel ogend ontwerp ook eenvoudig en helder gerealiseerd te krijgen.
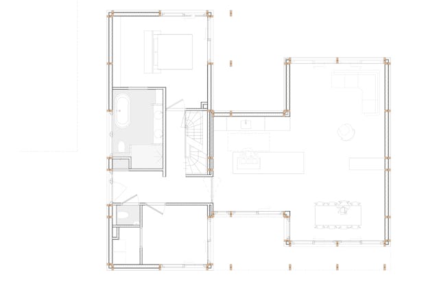
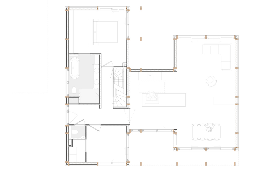
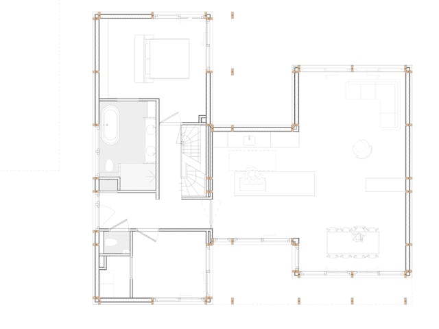
De ruimtes in het huis zijn georiënteerd op bepaalde doorkijken naar andere ruimtes of delen van de tuin. Zo is er een voor de opdrachtgevers belangrijke stiltekamer, is er een ritme in de overgangen van entree naar keuken naar woonkamer en hebben alle slaapkamers een eigen connectie met buiten. De zichtbare houten constructie en afwisseling van open en dichte vlakken, inclusief het houten plafond, creëren een rustige en sfeervolle ervaring.

De constructie is geprefabriceerd met gelamineerd hout waardoor de structuur van het huis binnen enkele dagen overeind stond. Het hout, gemaakt van Nederlands lariks, is in meerdere lagen verlijmd waardoor het zeer sterk is. De wanden waartegen de verticale delen in de gevel zijn geplaatst zijn juist van een lichter houtskeletbouw frame, wat ook zeer snel geplaatst kon worden. Hierdoor kon er naast een laag gewicht ook met een minimale wanddikte worden gewerkt, waarmee de kolommen goed zichtbaar zijn gebleven.
Duurzaamheid is voor de architecten altijd een basis. Het ontwerp spreekt hierin voor zich vanuit het slimme hout gebruik, maar komt ook terug in bijvoorbeeld het groendak, de zonnepanelen en de efficiënte installaties.













































