Het 34.000m2 grote 'Verwaltungszentrum' is gelegen op een prominente locatie in de binnenstad en zal deel uitmaken van een grotere stedelijke transformatie van de Ferdinandplatz.
Het nieuwe stadskantoor heeft een uitnodigend, alzijdig karakter, met drie stedelijke openingen die uit het volume zijn gesneden. De opening aan de Ferdinandplatz legt een sterke relatie met het plein, terwijl het raam aan de noordzijde een uniek uitzicht biedt en aansluit op het monumentale stadhuis. Een opgetilde groene patio kijkt uit op de Grosser Garten en weerspiegelt de groene ambities van de stad.
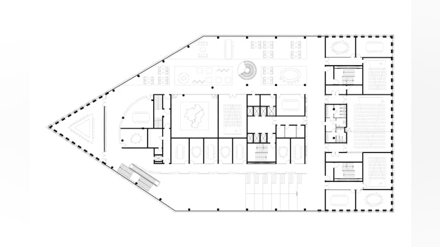
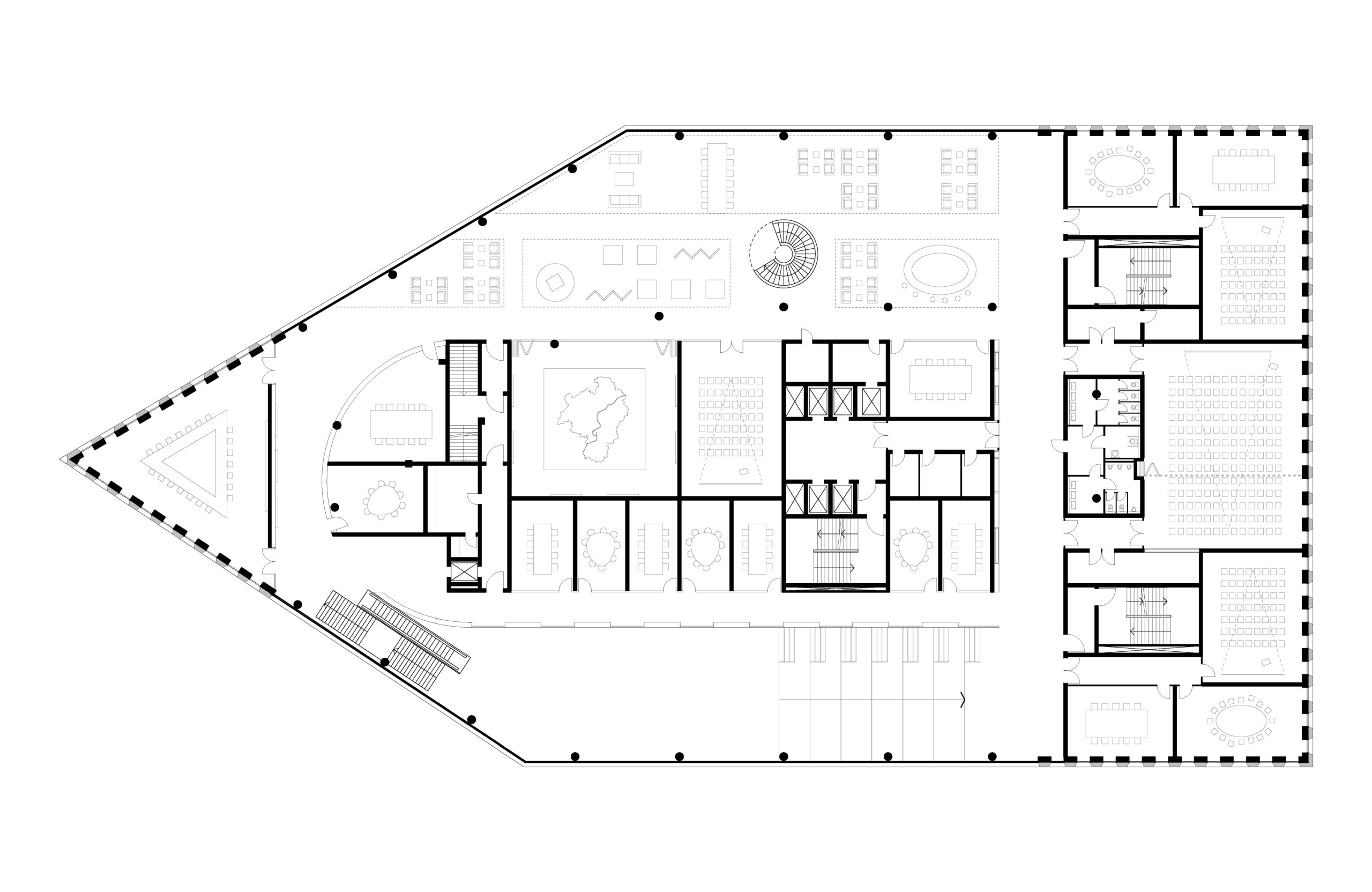
Bezoekers betreden het gebouw vanaf de Ferdinandplatz via een uitnodigende stadsfoyer. Deze open ruimte wordt een plek voor publieke interactie en biedt plaats aan de centrale receptie, het restaurant en verschillende openbare functies. Aan beide zijden van de entree leiden twee brede trappen naar de eerste verdieping. Eén trap vormt een groot presentatiepodium — of de 'agora' — waar debatten kunnen worden georganiseerd en projecten kunnen worden gepresenteerd met uitzicht over Ferdinandplatz.

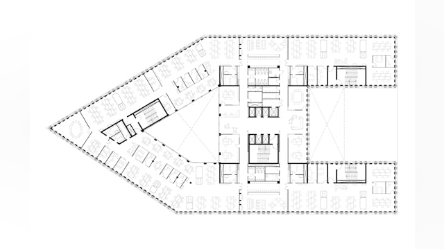
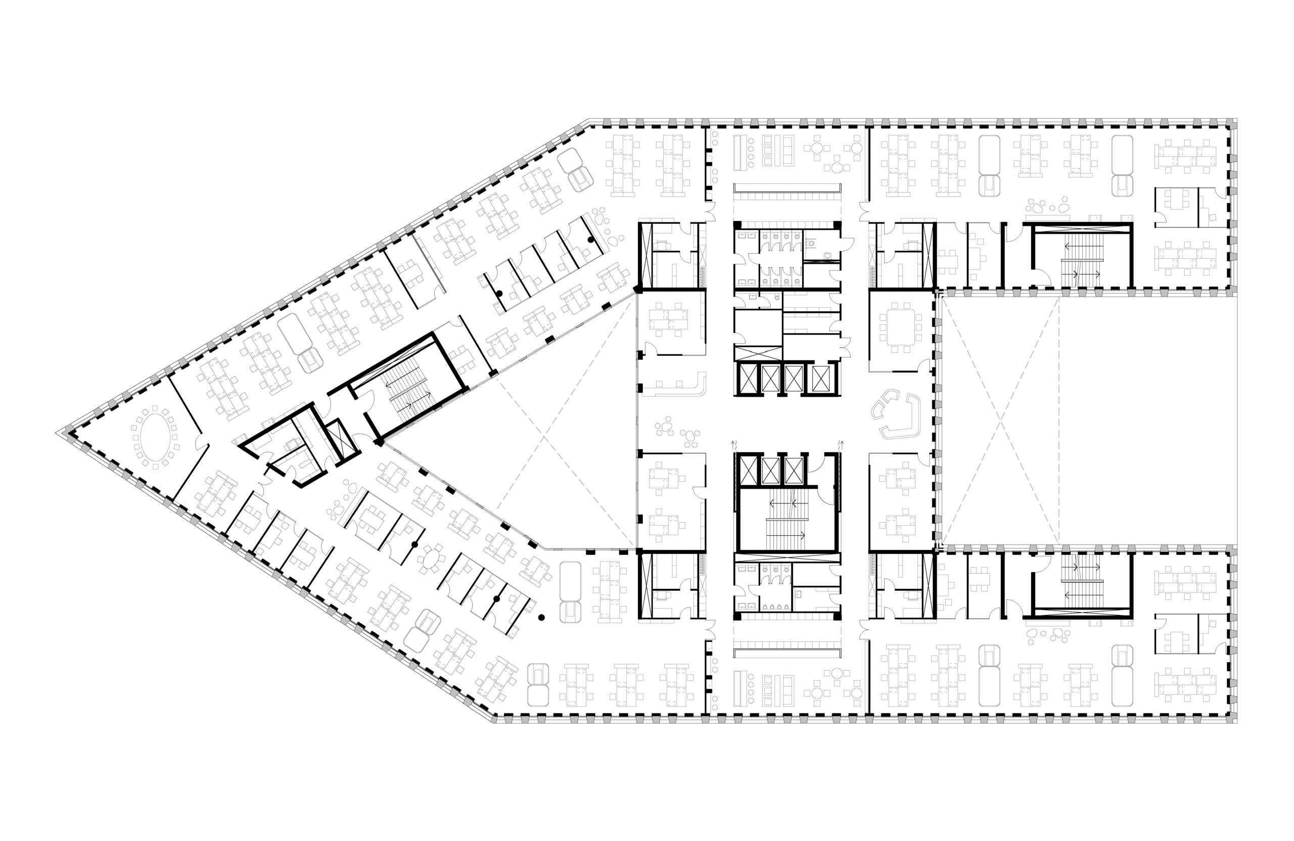
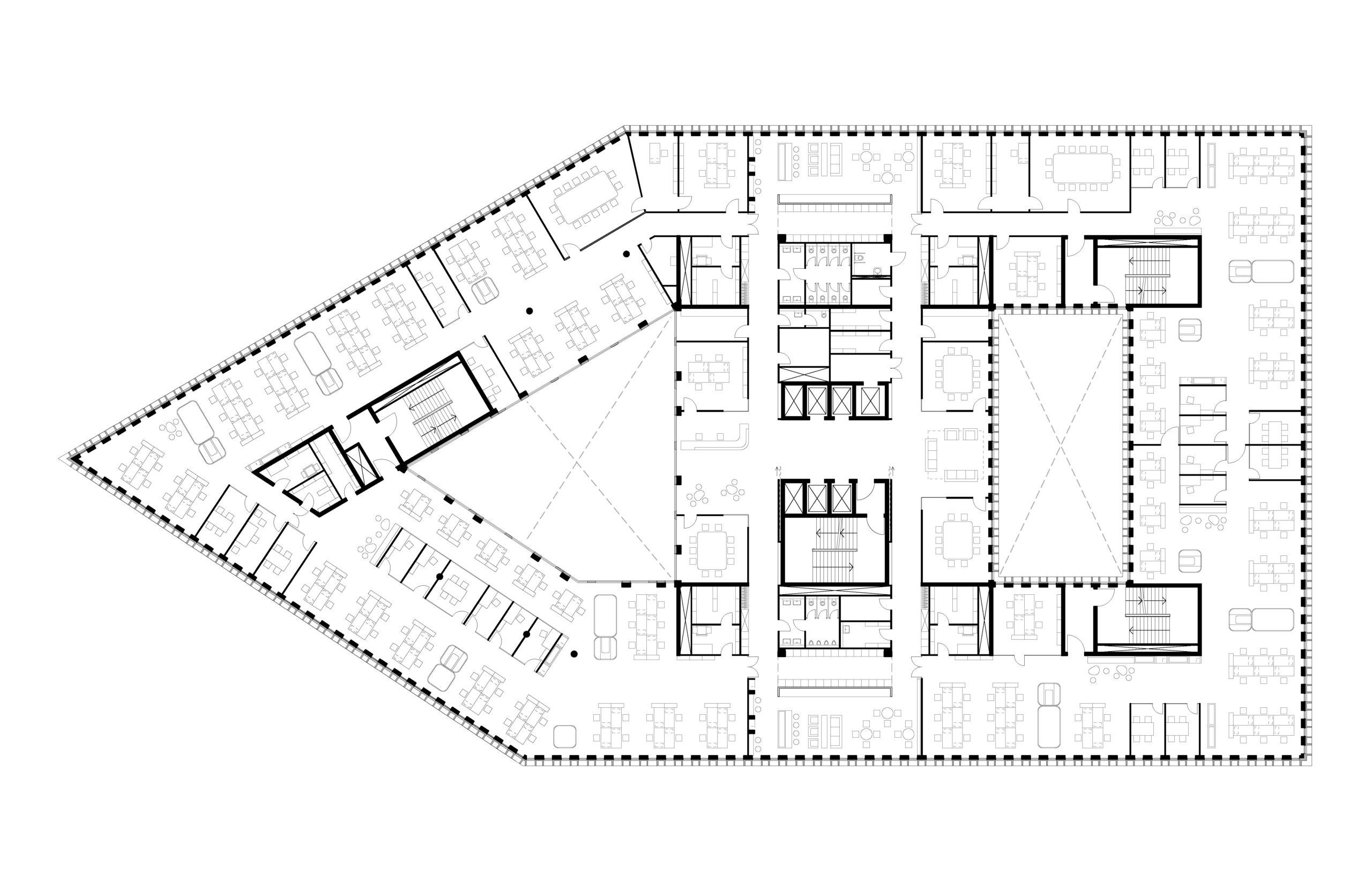
Op de eerste verdieping bevindt zich het openbare conferentiecentrum. Deze laag fungeert als een huiskamer voor ambtenaren en het publiek, tegen de achtergrond van het historische Rathaus. Op de bovenste verdiepingen zijn de kantoorruimten slim georganiseerd rond twee open patiotuinen aan weerszijden van een centrale kern, wat voor korte looplijnen tussen werknemers zorgt en een duidelijke oriëntatie biedt.

De twee binnenhoven fungeren als groene longen van het gebouw en zorgen voor aangename daglichtomstandigheden en een natuurlijke, gezonde werkomgeving op elk punt van de kantoorverdiepingen. De oostelijke patio opent zich als een opgetilde tuin naar de St. Petersburgerstrasse en kan door medewerkers gebruikt worden om even een luchtje te scheppen, of voor een informele bijeenkomst met uitzicht op de stad.
Het gebouw heeft een karakteristieke, drielaagse gevelopbouw die aansluit op de lokale architectonische waarden. De natuurstenen gevel maakt een koppeling tussen de identiteit van het historische stadscentrum en de moderne ambities van de stad. Ramen die van vloer tot plafond doorlopen onthullen de warme, houten interieurs en de grote groene muren aan de buitenwereld. De donkere kroon zorgt voor een optische verlaging van het volume.
Het project is ontworpen door Barcode Architects in samenwerking met Tchoban Voss Architekten, en zal worden gebouwd door Züblin AG/Dressler Bau. Het ontwerpteam bestaat verder uit Werner Genest und Partner Ingenieurgesellschaft mbH (bouwfysica, akoestiek), Prof. Rühle, Jentzsch und Partner GmbH (brandveiligheid), Zimmermann und Becker GmbH (installaties) en Noack Landschaftsarchitekten (landschapsontwerp). De oplevering van het gebouw is gepland in 2025.
Lees ook:

























