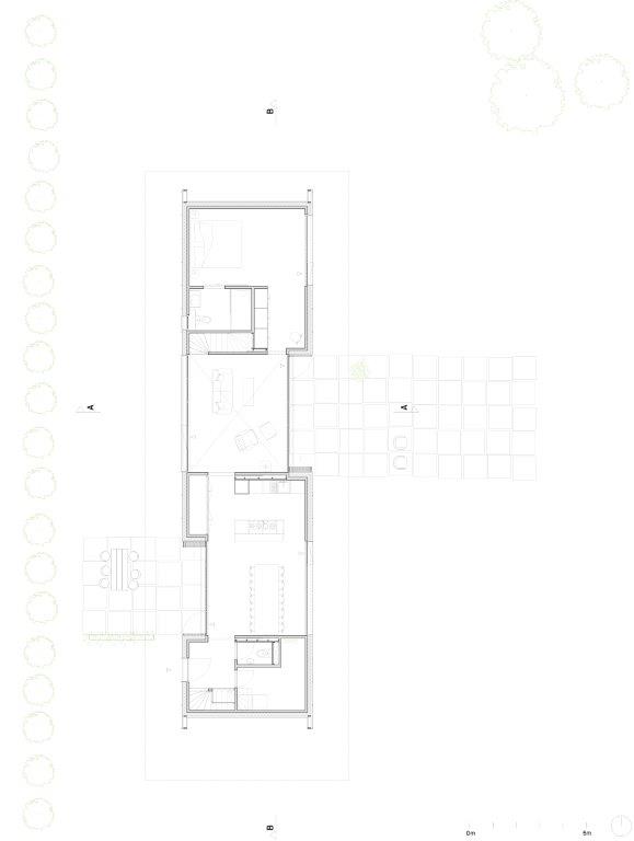
Het lange slanke volume voor maximaal uitzicht dwars op het bouwkavel geplaatst. Eenmaal binnen vindt is er een aaneenschakeling van dichte en open ruimtes waardoor gangen overbodig zijn en de routing als vanzelfsprekend door de ruimtes voert.
De nadruk is gelegd op de open ruimtes waar de belangrijkste leeffuncties zijn gelegen. Zo heeft de eetruimte twee glazen gevels en een terras aan de westkant waar in de namiddagzon gegeten kan worden bij lekker weer. Er is ook een terras aan de oostkant geplaatst voor ochtendzon, deze grenst aan de tweede belangrijke leefruimte, de zitkamer.

Deze ruimte is dubbel hoog waardoor de nok en de stalen dakconstructie goed zichtbaar zijn. Om extra overdekte ruimte te creëren springt de gevel ter plaatse van de twee terrassen naar binnen, hier wordt buiten als het ware naar binnen getrokken.
Bij binnenkomst is aan de rechterkant een trap naar de bovenverdieping geplaatst, deze geeft direct toegang tot de workshop ruimte die los van de woning zelfstandig kan fungeren. Een tweede trap geeft toegang tot een flexibele ruimte die in open verbinding staat met de zitkamer.

Vanuit een beperkt budget is een set low-tech maatregelen getroffen die deze woning duurzaam maken. Zo beschermde het overhangende dak de woning tegen weersinvloeden (onderhoud) en oververhitting in de zomer door de schaduwval. Ook werken de hoge dakramen mee aan de natuurlijke ventilatie, wordt het regenwater verzameld in een ondergrondse tank om de tuin te sproeien en wordt warmte en elektriciteit opgewekt door het naastgelegen boerenbedrijf middels een mestvergister.
De gehele woning is rauw en industrieel gelaten en afgewerkt met een gebrande houten gevelbekleding. 'Met het lichte stalen dak vorm de schuurwoning zo een stevig gebaar in het open landschap".
Lees ook:


























