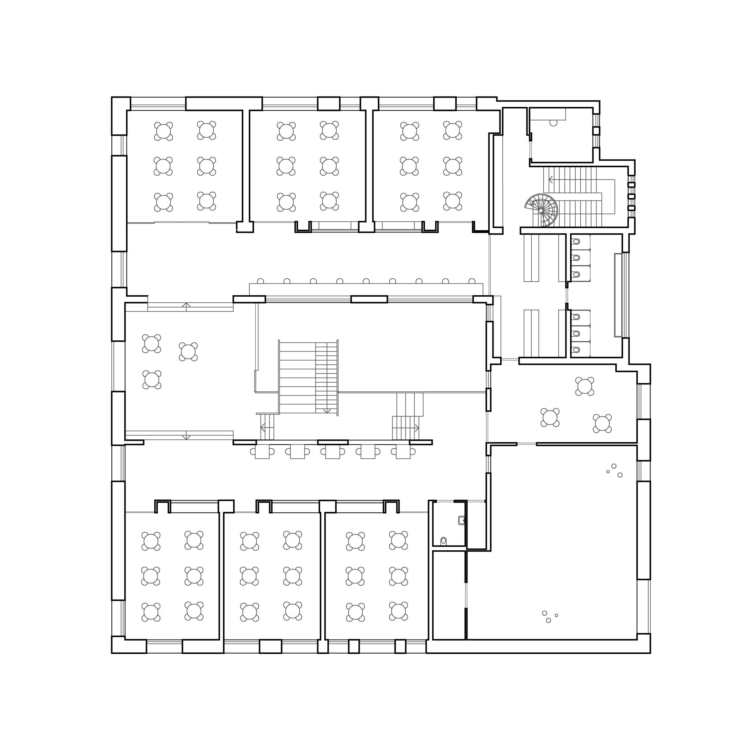
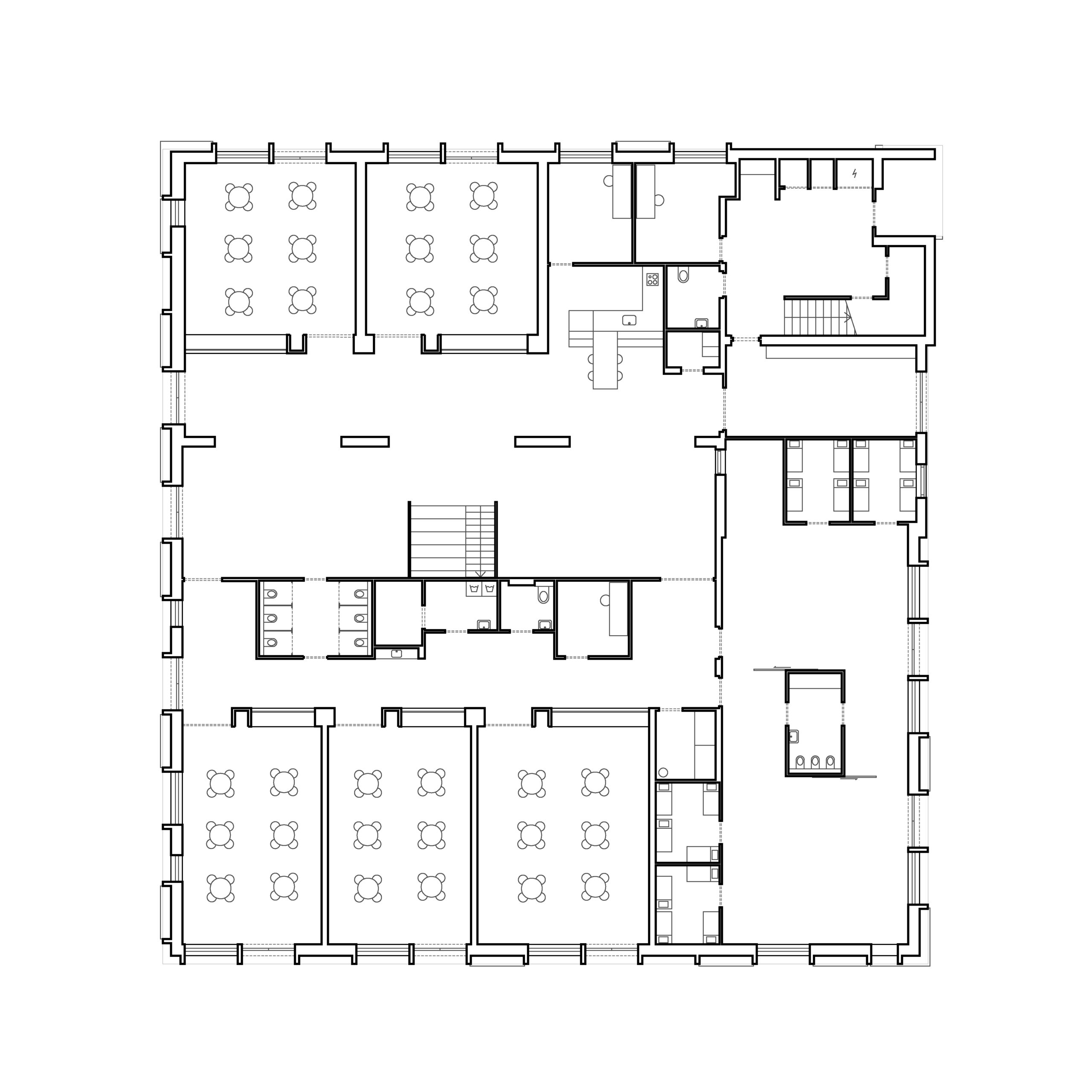
Toelichting Studio Nauta - Het gebouw, ontworpen door Studio Nauta en De Zwarte Hond, wordt gebruikt door meer dan 200 kinderen. Het bestaande monumentale schoolgebouw uit de jaren twintig van de vorige eeuw is geïntegreerd in het ontwerp. De historische organisatorische principes en typerende Amsterdamse School-details worden in een hedendaagse vorm voortgezet in het nieuwe deel. Zo ontstaat een coherent geheel waarin toch de verschillende bouwfasen leesbaar zijn. Het geheugen van de wijk wordt zo behouden, maar tegelijkertijd ook voorzien van een nieuwe laag.

Het nieuwe gebouw is georganiseerd rondom een aantal leerclusters met ruimten voor samenwerken, spel, concentratie en rust. Het interieur heeft een natuurlijke uitstraling door het gebruik van hout en metselwerk.

De oude, gemetselde zuidgevel komt midden in het nieuwe gebouw te staan en vormt het hart van de nieuwe school. Hier komen alle leeftijden onder een groot daklicht en rond een centrale keuken samen. Omdat deze keuken direct aan de hoofdentree is gelegen ontstaat een ontwapenende en huiselijke sfeer.









































