Toelichting Atelier Kempe Thill - Het uitgangspunt van het ontwerp was de transformatie van een bestaande verpleegschool uit de late jaren 50 van de vorige eeuw. Het aangename gebouw was, na bijna 60 jaar gebruik, nog steeds in goede staat, maar bood slechts kleine en inflexibele klaslokalen die onvoldoende geschikt waren voor het hedendaagse kunstonderwijs.
Omdat het budget geen volledige sloop van het bestaande huis toeliet, besloot Atelier Kempe Thill te kiezen voor een gecombineerde strategie van gedeeltelijk hergebruik, gedeeltelijk transformatie en gedeeltelijke afbraak om ruimte te maken voor een substantiële nieuwe uitbreiding van het instituut. Het hoofdgebouw langs de straat en de zijvleugel werden behouden, terwijl de twee kleinere auditoria aan de tuinzijde werden gesloopt.

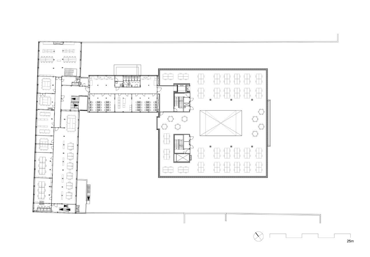
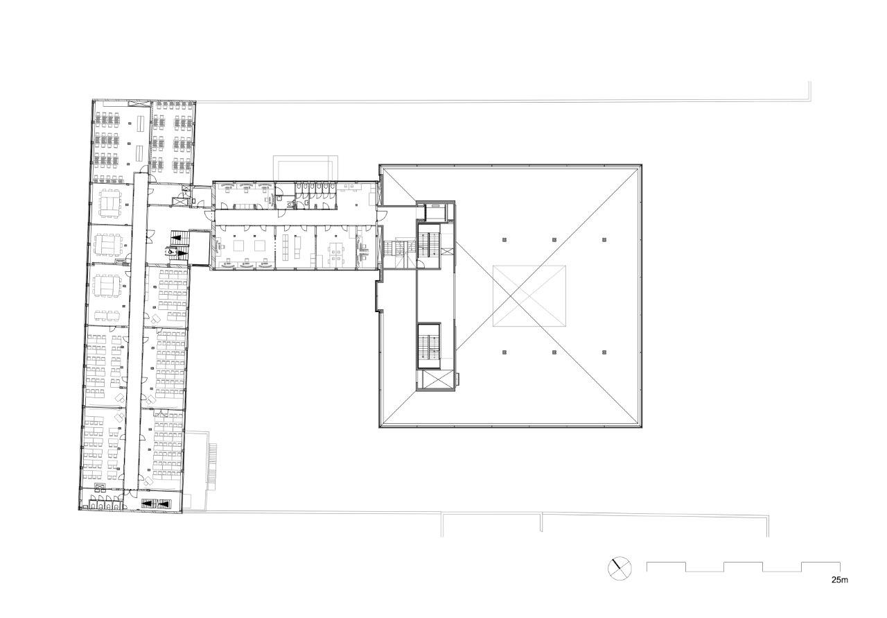
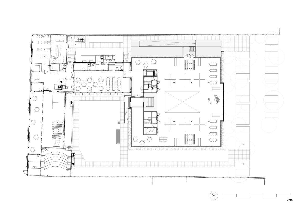
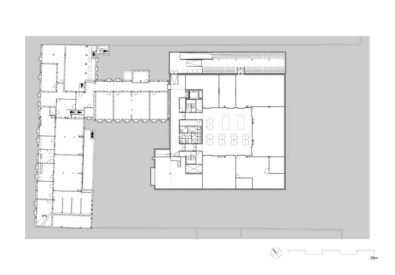
De transformatie was vooral gericht op de begane grond van de bestaande verpleegschool. Om de school een meer publiek karakter te geven, werden nagenoeg alle niet-dragende en gedeeltelijk dragende muren verwijderd om grotere en meer flexibele ruimtes te kunnen realiseren. De straatgevel is geopend door het plaatsen van grote ramen waardoor er een sterke visuele relatie tussen de straat en de school ontstaat. In de gevel zijn functies zoals de openbare kunstbibliotheek en de tentoonstellingsruimte geplaatst om interactie met het publiek en de stad te maximaliseren. In de centrale zijvleugel is – met zicht op de groene binnenplaats en de centrale hal - het studentenrestaurant gerealiseerd dat dienstdoet als social connector. Op het dak van het bestaande gebouw werd een belangrijke fotostudio geplaatst. Om deze studio te verwezenlijken, werd het bestaande dak gedeeltelijk verwijderd en een nieuwe structuur geplaatst, waardoor hogere en meer flexibele ruimtes ontstonden.

Nieuw atelierhuis
Aan de tuinzijde van de bestaande school hielp een substantiële nieuwe uitbreiding in de vorm van een atelierhuis het instituut meer flexibele en inspirerende studioruimten te bieden. Het nieuwe, relatief grote, volume is voorzichtig geïmplementeerd op het binnenterrein van de bestaande bouwblok afkomstig uit de vroege 20e eeuw. Het bouwvolume is gedeeltelijk ondergronds gerealiseerd om zijn absolute hoogte te beperken. De bovenste verdieping van het nieuwe volume heeft ook een aanzienlijke set-back om de visuele impact van de nieuwbouw nog verder te reduceren.

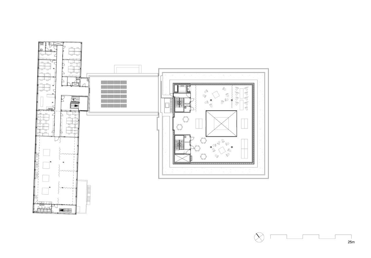
Het atelier, dat door zijn open glazen gevels een eerder lichte indruk maakt, is met zijn messing geanodiseerd metalen gevel op zoek naar een dialoog met de monumentale Sint Laurentiuskerk en de andere bakstenen gebouwen in de directe omgeving. Het compacte volume van de nieuwbouw (ongeveer 34m x 34m) bestaat uit vier verdiepingen van altijd 3,75m vrije hoogte. De kelder met uitstekende daglichtomstandigheden biedt plek voor werkplaatsen, een drukkerij en de studio’s voor juweelontwerp. De begane grond en de eerste verdieping worden gebruikt als atelierruimtes voor beeldende kunstenaars. De ateliers zijn met elkaar verbonden door een 12 m hoge vide van ca. 8m x 13m, die wordt verlicht door een groot, centraal geplaatst dakraam. Op de tweede verdieping vindt men lokalen geschikt voor het tekenprogramma van de academie.

Optimale omstandigheden voor kunsteducatie
Het project is op zoek naar optimale condities voor het hedendaagse kunstonderwijs en probeert deze te vertalen in het ontwerp van het atelierhuis. Atelier Kempe Thill stimuleerde hierbij de gebruikers om het initiële ruimteprogramma te heroverwegen en te herzien, wat resulteerde in een fundamentele verandering van het onderwijsconcept en de ontwerpopdracht. In plaats van de aanvankelijk gevraagde grote hoeveelheid gescheiden lokalen, biedt het atelierhuis nu open en zeer neutrale plateaus met een oppervlakte tot 930m2 per verdieping, die maximale flexibiliteit mogelijk maken en tegelijkertijd spontaan gebruik van de ruimte stimuleren. Om alsnog een flexibele ruimtelijke indeling te realiseren zijn beweegbare scheidingsmuren van 2,2m x 2,2m x 0,5m ontworpen die het mogelijk maken de ruimte op te delen in verschillende configuraties. Deze scheidingswanden kunnen met de lift van verdieping naar verdieping worden verplaatst.
Als een parkeergarage
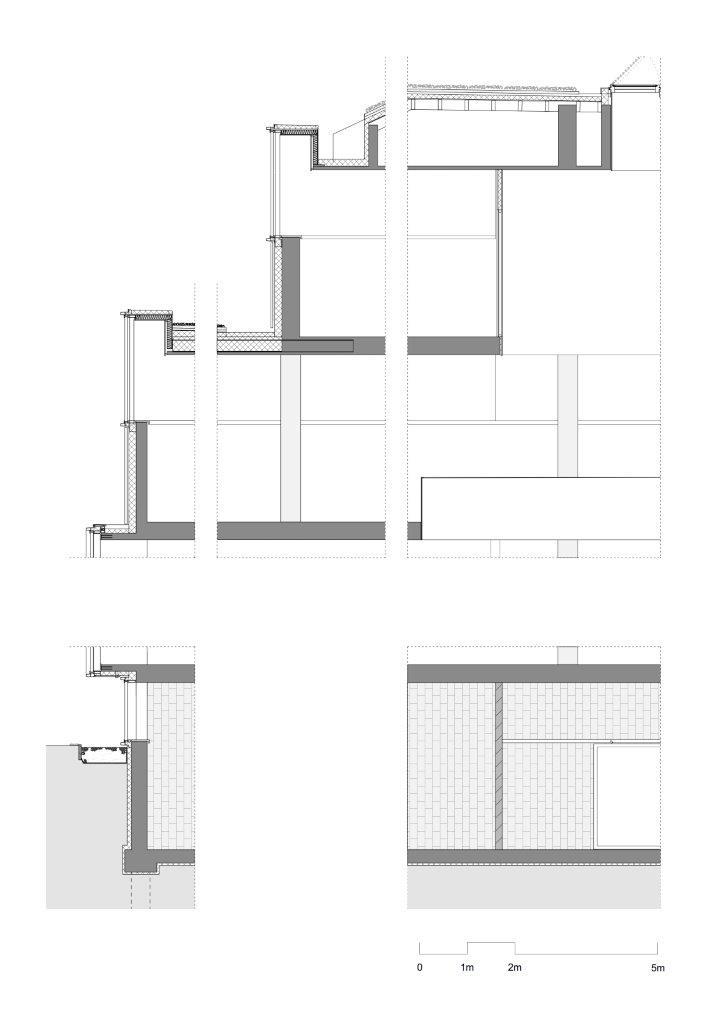
Om binnen het gestelde budget te blijven, probeerde Atelier Kempe Thill een relatief betaalbaar systeem te vinden voor de bouw van het atelierhuis. Uitgangspunt was het concept om het huis vorm te geven net als een parkeergarage. Alle vloeren zijn gemaakt van massief gepolijst beton om zo het gebouw robuust te houden en zodoende veel weerstand tegen onverwacht gebruik bieden. Akoestische plafonds zijn- waar mogelijk -vermeden om de betonen plafonds in zicht te laten. De wanden en kolommen zijn ontworpen in in-situ beton, met veel aandacht voor de kwaliteit van het bekistingspatroon. Ook is er gestreefd om de noodzakelijke constructieve delen tot een minimum te beperken.

In dialoog met de ingenieurs van BAS Leuven is een draagstructuur ontwikkeld met een minimum aan kolommen, dragende gevels en vrijdragende wanden, wat ervoor zorgt dat hoekkolommen konden worden vermeden. Het dak is uitgevoerd als een 'hangend dak' met voorgespannen dakbalken om aanvullend kolomgebruik te voorkomen. Het ventilatiesysteem van het gebouw is gebaseerd op het nieuwe BaOpt-principe. Hierdoor zijn horizontale luchtkanalen vermeden, wat resulteert in een visueel bijna 'installatievrij' gebouw. Het robuuste karakter van het huis wordt onderstreept door de geverfde massieve stalen balustrades rond het centrale atrium en enkele geschilderde houten interieurelementen, wat zorgt voor een rustig, door beton gedomineerd interieur dat het gerichte werkproces van de kunstenaars ondersteund en versterkt.
Façade
Het atelierhuis is hoofdzakelijk van binnenuit naar buiten ontworpen. Het ontwerp biedt een maximum aan gesloten wanden die ideale omstandigheden bieden voor de productie en het presenteren van kunstwerken. Deze muren zijn 2,2 m hoog en omsluiten de plateaus, wat zorgt voor een zeer geconcentreerde en haast hermetische sfeer binnen het gebouw. De tot 5,3 m lange en tot 2,3 m hoge glazen ramen vormen doorlopende horizontale glasbanden die de buitenkant van het gebouw domineren. Zowel de plint als het paar dakranden zijn beide gemaakt van glas waardoor het gebouw een zeer bijzonder en transparant karakter heeft dat wordt onderstreept door de open hoeken die ook in glas zijn vormgegeven. Het grote panoramavenster van 14m x 4m in het midden van het huis springt subtiel uit de - verder gladde - gevel en biedt zicht op het interieur van de school. Tussen de horizontale glasbanden werden aluminium platen met verticale kanalen geplaatst. Net als de kozijnen zijn ze geanodiseerd in een donkere messing toon die overeenkomt met de omliggende bakstenen gebouwen. De perforatie van de aluminiumplaten met een patroon van ronde gaten voegt extra lichtheid toe aan de gevel.

Een nieuw type kunstacademie
Het resulterende project kan worden gezien als een interessante bijdrage aan de discussie over de toekomst van het kunstonderwijs. Met zijn open plateaus ondersteunt de school meer samenwerkingsmethoden op verschillende niveaus, biedt enorme flexibiliteit naar de toekomst en stimuleert het spontane uitingen van kunst. Het publieke karakter van het gebouw wordt ondersteund door de openbare mediatheek en de permanente tentoonstellingsruimte, die beide rechtstreeks interageren met de publieke ruimte.
Halfjaarlijks organiseert de school grote tentoonstellingen van studentenwerken en dan fungeert het hele gebouw als een aanzienlijke tentoonstellingsruimte. Met zijn grote lege ruimte en perfecte daglichtomstandigheden lijkt het atelierhuis tijdens deze shows op een museum voor hedendaagse kunst, dat duizenden bezoekers trekt en de school verandert in een echt publiek gebouw. Zodoende krijgen de studenten de kans om hun werk aan een breder publiek te presenteren in een zeer elegante omgeving die hen ondersteunt bij het vinden van hun weg als toekomstige kunstenaars.
De gewenste publieke zichtbaarheid van de St. Lucas-school wordt hierbij niet tot stand gebracht door monumentale gevels of het gebruik van dure materialen en details, maar door een bijna onverwachte en indrukwekkende ruimtelijkheid, en een verfrissende transparantie van het instituut. Deze stimuleren de interactie met de stad en het publiek, en vermijden tegelijkertijd het meestal gesloten karakter van traditionele onderwijsinstellingen.
0203_200204_detail.pdf
Download0203_200204_detail.pdf
Download0203_200204_facade-east.pdf
Download0203_200204_facade-north.pdf
Download0203_200204_facade-south.pdf
Download0203_200204_facade-west-street.pdf
Download0203_200204_facade-west.pdf
Download0203_200204_plan-1.pdf
Download0203_200204_plan-2.pdf
Download0203_200204_plan-3.pdf
Download
0203_200204_detail.pdf
Download0203_200204_facade-east.pdf
Download0203_200204_facade-north.pdf
Download0203_200204_facade-south.pdf
Download0203_200204_facade-west-street.pdf
Download0203_200204_facade-west.pdf
Download0203_200204_plan-1.pdf
Download0203_200204_plan-2.pdf
Download0203_200204_plan-3.pdf
Download0203_200204_plan-0.pdf
Download
0203_200204_detail.pdf
Download0203_200204_facade-east.pdf
Download0203_200204_facade-north.pdf
Download0203_200204_facade-south.pdf
Download0203_200204_facade-west-street.pdf
Download0203_200204_facade-west.pdf
Download0203_200204_plan-1.pdf
Download0203_200204_plan-2.pdf
Download0203_200204_plan-3.pdf
Download0203_200204_plan-0.pdf
Download0203_200204_plan-11.pdf
Download
0203_200204_detail.pdf
Download0203_200204_facade-east.pdf
Download0203_200204_facade-north.pdf
Download0203_200204_facade-south.pdf
Download0203_200204_facade-west-street.pdf
Download0203_200204_facade-west.pdf
Download0203_200204_plan-1.pdf
Download0203_200204_plan-2.pdf
Download0203_200204_plan-3.pdf
Download0203_200204_plan-0.pdf
Download0203_200204_plan-11.pdf
Download0203_200204_section-cc.pdf
Download
0203_200204_detail.pdf
Download0203_200204_facade-east.pdf
Download0203_200204_facade-north.pdf
Download0203_200204_facade-south.pdf
Download0203_200204_facade-west-street.pdf
Download0203_200204_facade-west.pdf
Download0203_200204_plan-1.pdf
Download0203_200204_plan-2.pdf
Download0203_200204_plan-3.pdf
Download0203_200204_plan-0.pdf
Download0203_200204_plan-11.pdf
Download0203_200204_section-cc.pdf
Download0203_200204_section-dd.pdf
Download
0203_200204_detail.pdf
Download0203_200204_facade-east.pdf
Download0203_200204_facade-north.pdf
Download0203_200204_facade-south.pdf
Download0203_200204_facade-west-street.pdf
Download0203_200204_facade-west.pdf
Download0203_200204_plan-1.pdf
Download0203_200204_plan-2.pdf
Download0203_200204_plan-3.pdf
Download0203_200204_plan-0.pdf
Download0203_200204_plan-11.pdf
Download0203_200204_section-cc.pdf
Download0203_200204_section-dd.pdf
Download0203_200204_section-ee.pdf
Download
0203_200204_detail.pdf
Download0203_200204_facade-east.pdf
Download0203_200204_facade-north.pdf
Download0203_200204_facade-south.pdf
Download0203_200204_facade-west-street.pdf
Download0203_200204_facade-west.pdf
Download0203_200204_plan-1.pdf
Download0203_200204_plan-2.pdf
Download0203_200204_plan-3.pdf
Download0203_200204_plan-0.pdf
Download0203_200204_plan-11.pdf
Download0203_200204_section-cc.pdf
Download0203_200204_section-dd.pdf
Download0203_200204_section-ee.pdf
Download0203_200204_site-antwerp.pdf
Download
0203_200204_detail.pdf
Download0203_200204_facade-east.pdf
Download0203_200204_facade-north.pdf
Download0203_200204_facade-south.pdf
Download0203_200204_facade-west-street.pdf
Download0203_200204_facade-west.pdf
Download0203_200204_plan-1.pdf
Download0203_200204_plan-2.pdf
Download0203_200204_plan-3.pdf
Download0203_200204_plan-0.pdf
Download0203_200204_plan-11.pdf
Download0203_200204_section-cc.pdf
Download0203_200204_section-dd.pdf
Download0203_200204_section-ee.pdf
Download0203_200204_site-antwerp.pdf
Download0203_200204_situation.pdf
Download






















































































