Toelichting door Bláha architecture+design - Het pittoreske huisje aan de Mallemolen was een enorme bouwval. Hoofdelementen als een trap, wc en keuken ontbraken. Op plekken waar kozijnen hoorden, zaten grote afgetimmerde gaten naar buiten toe.
De opdrachtgevers wilden de hofjeswoning van buiten volledig restaureren. Binnen wilden ze een fris, nieuw ontwerp met een moderne uitstraling waarbij de zeventig vierkante meter zo efficiënt mogelijk ingedeeld werd.
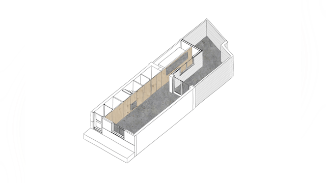
Houten kastenwand
In een kastenwand die langs de woningscheidende wand loopt, worden alle elementen als de entree, wc, trap, wasruimte, garderobe, tv kast, open haard en keuken bij elkaar geclusterd.
Er blijft hierdoor een grote woonruimte over, die ingedeeld kan worden naar wens van de gebruiker. In de kastenwand gaat de trap naar boven en deze komt uit op de slaapverdieping. Ook hier is langs de voorgevel een kastenwand geplaatst waar de badkamer, cv kast en een kledingkast zijn samengevoegd. Langs de dakkapel is een lange bank geplaatst die tevens is voorzien van lades voor extra opslag.
Om de kastenwanden als elementen te benadrukken zijn ze volledig voorzien van hout. Door de lange kastenwand te materialiseren met hout vallen ze extra op en versterken ze het ruimtelijk ontwerp.





































