Toelichting Happel Cornelisse Verhoeven - De brandweerpost is een kazerne die 24/7 wordt bemand door opeenvolgende shifts en voorziet in de huisvesting van een remise met blus- en ladderwagen, burelen en woon, kleed en slaapvertrekken. Alle functies zijn ondergebracht in een opklimmend postuur dat in de breedterichting van de straat is gepositioneerd, losgehouden van haar buurpanden.

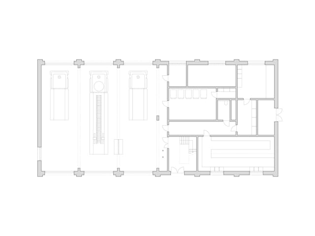
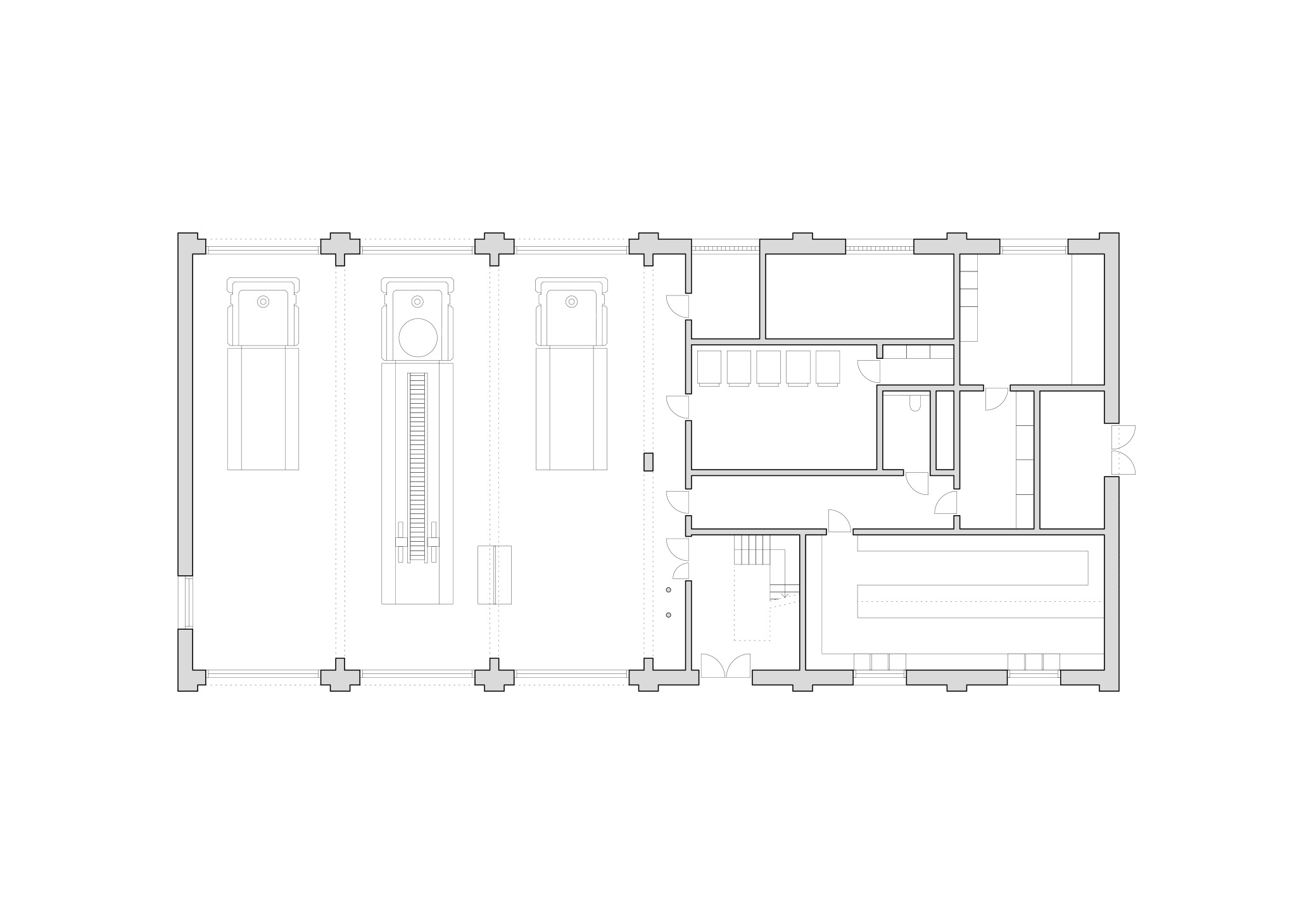
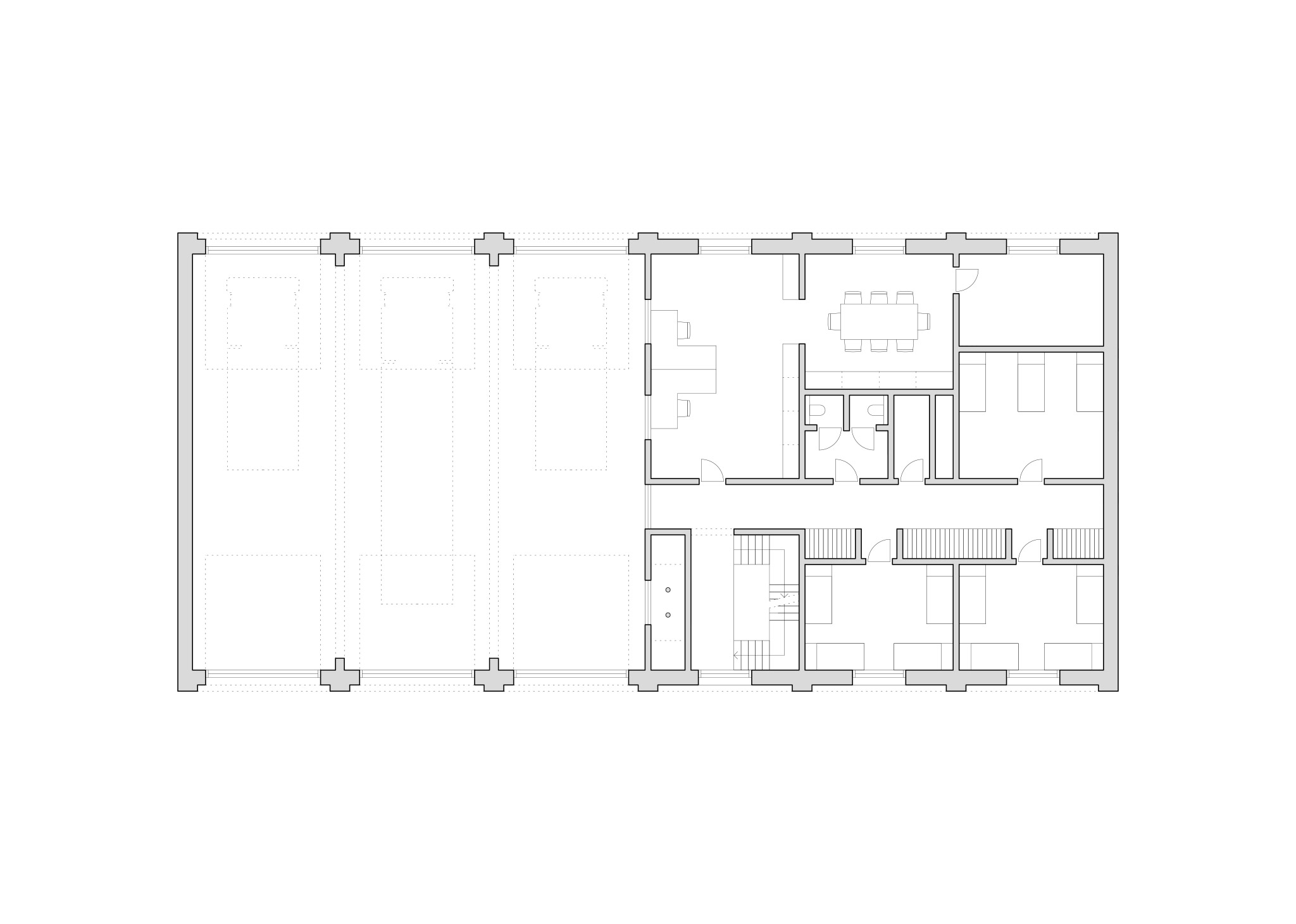
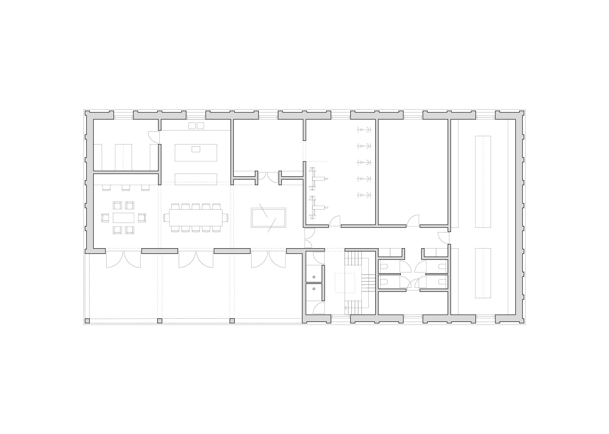
Remise, woonhuis en toren
De volumetrische opbouw van de kazerne bestaat uit een stapeling van een dubbelhoge remise met daarboven een woonverdieping waar alle leefruimtes zich bevinden. Op de hoek van het gebouw is een daktoren toegevoegd waarin de technische ruimte is ondergebracht. Dit stedenbouwkundig accent is gericht op de tegenovergelegen verkeerskruising. Bovenin zijn de letters van de brandweer in diepdruk aangebracht. Reynoud Homan maakte hiervoor een subtiele bewerking van het letterfont ‘Universe’ om zo de alomvattende functie van de brandweer te weerspiegelen.

Architecture parlante
Bijzondere aandacht is uitgegaan naar de tektonische afleesbaarheid van de gevels die uitdrukking geven aan de typologische stapeling van remise, woonhuis en toren. Deze stapeling neemt naar boven toe evenredig af in hoogte en wordt benadrukt door een onderlinge terugsprong van steeds tien centimeter. De pilastergevels zijn opgetrokken in rood geglazuurde stenen in groot en kleinformaat en worden ritmisch onderbroken met rood geschilderde cordonbanden en dieppaarse kozijnen. Het monochrome karakter zorgt voor een herkenbaar signalement in de wijk, een 'architecture parlante' waarbij vorm en verschijning onherroepelijk herinneren aan de functie van het gebouw en de taak van haar gebruikers.
Hybride constructie
Het gebouw bestaat uit een hybride draagconstructie met een centrale trap die de verschillende verdiepingen met elkaar verbindt en zorgt voor een vlotte afwikkeling tijdens een interventie-oproep. Het gelijkvloers met garage en werkruimtes is omwille van de functionaliteit robuust uitgewerkt in beton. De bovengelegen verdiepingen voor kantoren en wonen zijn vervaardigd in massief hout dat zorgt voor een huiselijker karakter. Deurposten, inbouwkasten, plinten en chambranten geven een bruinrode toets in de kamerstructuur.

Bestendig
De nieuwe brandweerkazerne trekt resoluut de kaart van een bestendig en duurzaam gebouw, met optimaal gebruik van hernieuwbare energie dankzij een zonneboiler, warmtepomp, zonnepanelen op het dak en diverse technieken voor het recupereren van regen- en bluswater. De kruislaaghoutconstructie heeft vanwege zijn natuurlijke, vochtregulerende werking een positieve invloed op het binnenklimaat en het energiegebruik.
































































