Toelichting Biq-BureauVanEig - De grootste uitdaging in de ontwerpopgave was om van deze grote fietsenopslag een aantrekkelijke verblijfsplek te maken. Door de koffie/werkplaatsvoorziening in een langgerekte en transparante vorm aan het centrale plein te plaatsen op een groene terp en onder een fietsendek krijgt het geheel de uitstraling van een paviljoen met fietsen. Een luie trap richting entree functioneert als zittribune met zicht op het plein. Het dek met stallingen dient als luifel voor de koffiebar en voorkomt opwarming door zoninval in de zomer. Het bestaande transformatorgebouw op de hoek is als baken opgenomen.

De architectuur van Coffee & Bikes is functioneel en voegt zich daarmee naar de visie van de TU Delft: de uitstraling is in overeenstemming met het gebruik. Het staal is in koffiebruin gepoedercoat, deze kleur vormt een mooi contrast met de grijze gebouwen in de omgeving. De bleekgroene kozijnen geven het gebouw karakter en laten het dek zweven. De constructie van de borstweringselementen is aan buitenzijde geplaatst. Hierdoor krijgt de gevel diepte terwijl de binnenzijde, die de balustrade van het fietsendek vormt, vlak blijft.

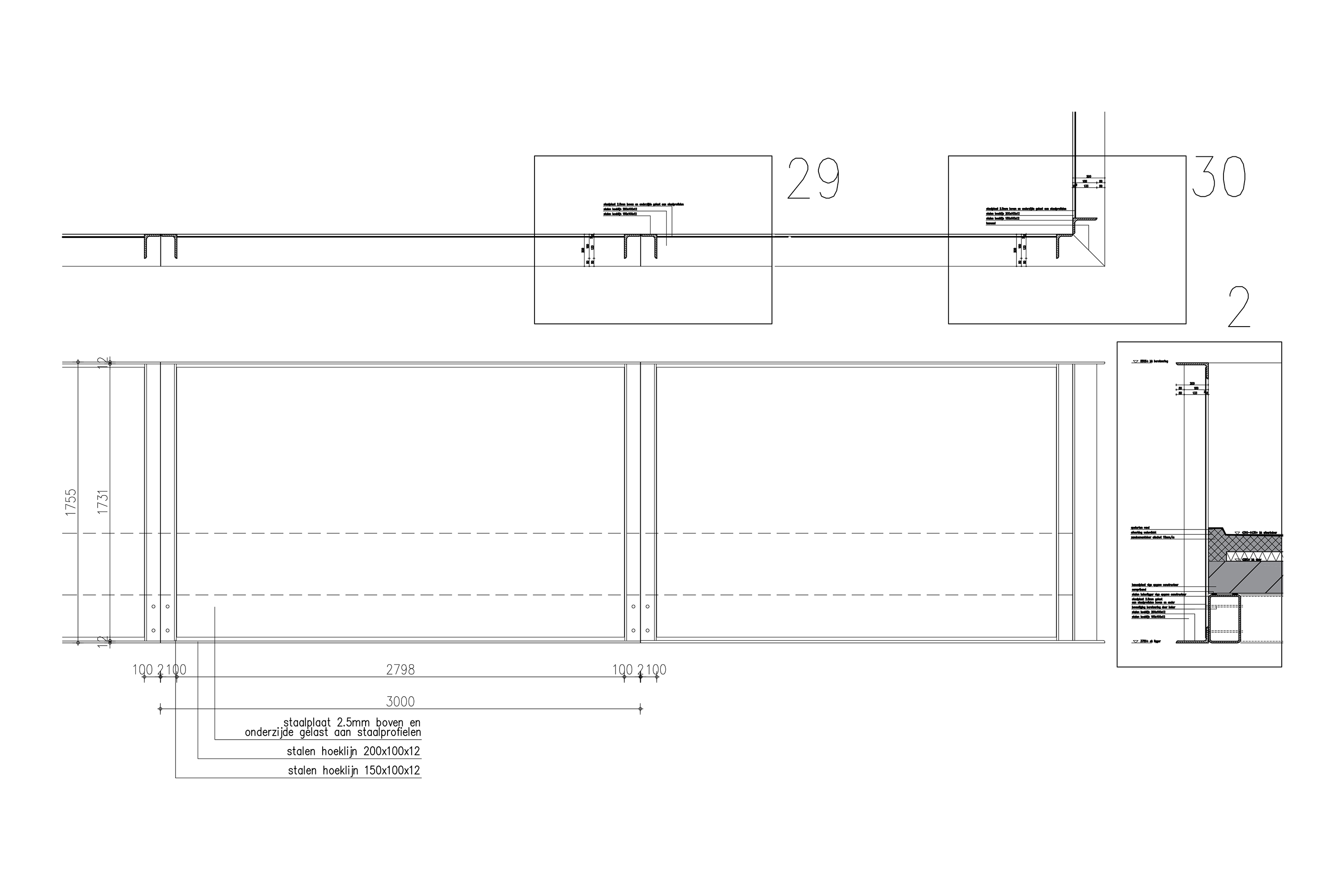
De ranke staalconstructie is zorgvuldig vormgegeven. De verbindingen zijn demontabel, in onzichtbare koppelingen gedetailleerd, waardoor de staalconstructie in de toekomst herbruikbaar is.
De vier meter hoge kolommen zijn slank uitgevoerd. Dankzij de stijve verbindingen zijn er, functioneel voor een fietsenstalling, geen windverbanden nodig. De constructie staat op een stramien van 5x6 meter. Dit stramien kan zowel standaard als dubbellaagse fietsenrekken herbergen, dat maakt de stalling flexibel.


























