Toelichting Houben / Van Mierlo Architecten - Schuin tegenover het provinciehuis in Den Bosch stond het voormalige kantoorgebouw van Rijkswaterstaat (1977). Gebouwd in een brutalistische no-nonsense betonarchitectuur. Het karakter van dit gebouw, met in het oog springende zware constructie, uitkragingen en bijzondere betondetails, gaf al voldoende aanleiding het duurzaam te hergebruiken. Ook vanuit stedenbouwkundig opzicht was het wenselijk geen (nieuwbouw-)massa op deze plaats toe te voegen. De vraag die centraal stond was hoe dit gebouw, dat in sociaal isolement in de wijk stond, getransformeerd kon worden tot een gebouw dat niet meer te gast was maar zich in de wijk zou nestelen.
Vanuit de krachtige verschijning en ‘landing’ van het bestaande gebouw in de wijk vroeg het met name om meer contact met zijn omgeving. Dit doel is op een aantal manieren gerealiseerd; er is gekeken naar programmatische aansluiting met de omgeving en naar manieren om het gebouw te openen en het omliggende landschap naar binnen te halen.

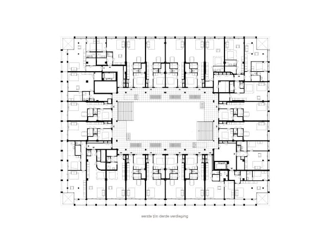
Holle kern
Eén van de ingrepen welke daarvoor is ingezet, is het toegankelijk maken van de holle kern van het gebouw. Hiervoor is het binnenplein een meter verlaagd en zijn de bestaande trappen vanaf maaiveld verlengd naar dit plein. De dynamiek van het binnenplein krijgt hierdoor een flinke impuls. Ook de buitentrappen aan dit binnenplein dragen hieraan bij. De bewoner wordt gestimuleerd om vanuit zijn woning het gebouw ‘uit te vloeien’ naar het maaiveld en onderwijl niet in de anonieme trappenhuizen te verdwijnen. Zo ontmoeten bewoners en bezoekers elkaar en treden in gesprek.
Ook het groene binnenplein en de verbinding naar de reeds aanwezige vijver stimuleert het bewonerscollectief. Door een andere functie op te nemen in de plint met een tandcentrum (orthodontie, laboratoria en tandartsen) neemt het gebouw deel aan de wijk en wordt het benaderbaar. De routing van de bewoners in het gebouw en bezoekers van deze maatschappelijk/commerciële plint kruisen elkaar bewust om ook zo dynamiek en contactmomenten te vergroten.

Landschappelijke inpassing
Naast de mix van het programma en het verhogen van de toegankelijkheid door het ontdoen van zijn gesloten schil zijn het gebruik van de gevelzone en de landschappelijke inpassing ingezet om dit doel te realiseren.
Het binnen-, het buitenplein en de vijver zijn met elkaar verbonden door de nieuwe, brede, trappen van het maaiveld naar het binnenplein in het gebouw. Om de landschappelijke inpassing tot stand te brengen heeft MTD-landschapsarchitecten een groenplan ontworpen en er zorg voor gedragen dat het gebouw onderdeel wordt van het landschap met vijver, pleinen, groenzones en de straat. Het groen is daarnaast letterlijk het gebouw in getrokken om zo ook het wonen in het groen op het binnenplein vorm te geven.
Constructie
De bestaande (veelal verstopte) bijzondere constructieonderdelen van het gebouw zijn ontdaan van hun camouflage. De prachtige brutalistische betonconstructie is uitgepakt en is zichtbaar gemaakt vanuit exterieur en interieur. Bij de wandeling in- of uit het woongebouw loop je er zelfs letterlijk onderdoor en kan je het bijna aanraken. Ook het ritme van de oorspronkelijke constructie is zichtbaar gemaakt in de gevelcompositie door het hybride gevelraster met daarachter direct het balkon of woonverblijf. De positie van een balkon, of juist meer woonruimte, is afgestemd op de zonoriëntatie en het gewenst programma. Dit gevelraster en de invulling met glas heeft er tevens voor gezorgd dat op deze, m.b.t. geluid zwaar belaste locatie, toch woonprogramma mogelijk is.
De tweelaagse optopping heeft de plek en het gebouw opgeladen en geïntensiveerd, zodat het gewenste programma gerealiseerd kon worden. Door een slimme gewichtsreductie in het bestaande gebouw op de eerste, tweede en derde laag en een overcapaciteit in de fundering kon het gebouw niet met één maar zelfs met twee lagen worden uitgebreid zonder constructieve aanpassingen aan de bestaande fundering. Dit kwam niet alleen het programma maar ook de stedenbouwkundige/architectonische compositie ten goede.
Het gebouw is met deze ingrepen van ‘solitair/onaantastbaar’ getransformeerd naar ‘gemeenschappelijk/communicerend’ en katalyseert daarmee de leefbaarheid van het gebied. Het neemt deel aan de diversiteit van de wijk en heeft zich moeiteloos gevoegd.

Duurzaamheid
Om het gebouw een tweede leven te geven is er ingezet op zo hoog mogelijke energetische normen, duurzaam grondstoffen/materiaalgebruik en flexibiliteit naar de toekomst voor een mogelijk derde leven. Het gebouw is ‘all-electric’ en volledig voorzien van duurzame energiebronnen.
De groene omgeving is zo min mogelijk gestoord en bijna volledig geconserveerd en uitgebreid. Aan de rand van het gebouw maar ook in het gebouw op het binnenplein. Alle bestaande bomen zijn behouden gebleven waarbij er enkele zelfs zijn verplaatst. De biodiversiteit is daarmee zo min mogelijk aangetast. Het regenwater wordt vertraagd geïnfiltreerd of rechtstreeks op het maaiveld geloosd.





































