toelichting door HofmanDujardin
Pockets
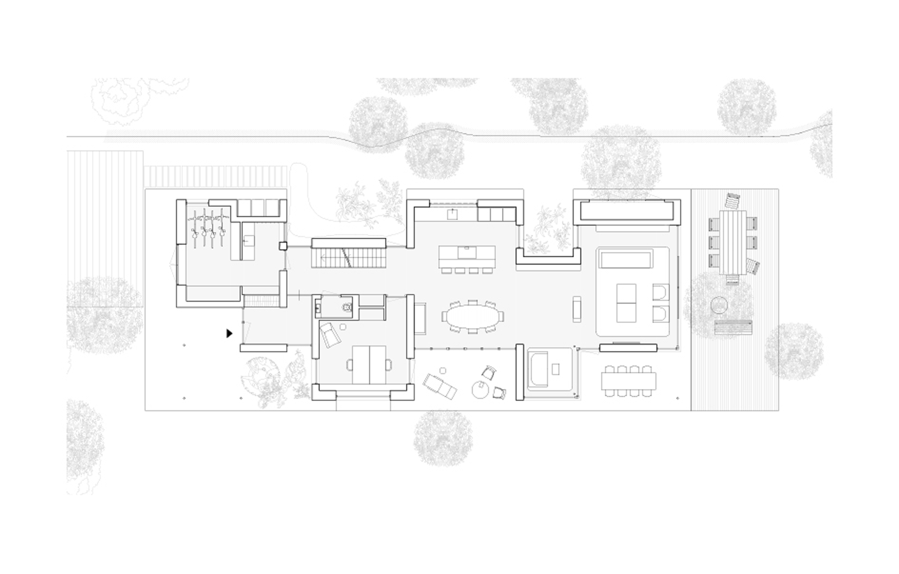
In de hoofdvorm van Villa Zeist 2 is de vraag naar privacy afgestemd op de mogelijkheden en beperkingen van de langgerekte kavel. In plaats van een enkel uitgestrekt volume, is de villa opgebouwd uit kleinere volumes die samen een serie pockets creëren. Deze half omsloten buitenruimten verzachten de relatie tussen het interieur en de omgeving. Deels overdekt door de betonnen luifel bieden ze geborgen plekken met eigen perspectieven op het landschap.

Geborgenheid
Deze pockets versterken ook de ruimtelijke kwaliteiten van de leefruimte in de volumes. Op twee manieren spelen ze in op de wens om privacy. Enerzijds creëren ze afstand tussen verschillende ruimten en bieden zo intimiteit aan de kamers. Anderzijds bieden ze de mogelijkheid om gevelopeningen te creëren in verschillende richtingen en beperken zo het directe zicht op de nabijgelegen buren. Op sommige plekken voelt het bos door verdiepingshoge schuifpuien heel nabij, terwijl in andere kamers de ramen strak gekaderde perspectieven bieden.
Zichtlijnen
Door de hele villa verbinden zichtlijnen in alle richtingen de ruimten onderling en met de omgeving. Dit bereikt een hoogtepunt in de centrale keuken die door HofmanDujardin is vormgegeven als het hart van het huis. Een vide langs de gevel opent deze ruimte naar de verdieping waar een groot raam veel daglicht binnenlaat en zicht biedt op de lucht. Dit perspectief wordt aangevuld met de warme metselwerk gevel en houten kozijnen die het interieur karakter geven en de villa verankeren in de bos.





















