Volgens Steven Holl Architects zijn de verschillende stromingen in de hedendaagse kunst tijden die parallel naast elkaar bestaan, in plaats van dat ze perioden vormen in een doorlopend historisch narratief. Deze 'vertakkingen van de tijd' zijn terug te zien in de vormen waaruit het gebouw is opgebouwd.
De vertakkingen van de tijd
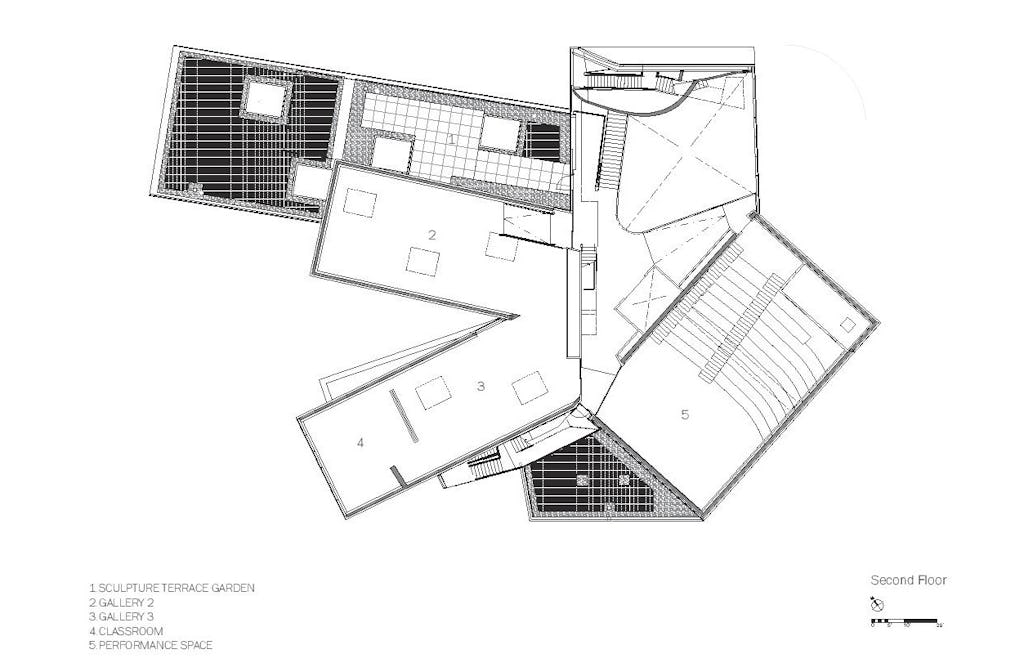
De vormen vertakken vanuit het centrum van museum dat door de architect de 'plane of the present' wordt genoemd. Het centrum verbindt in verticale richting de galerieën en de andere functies van het gebouw. Vier galerieën zijn ondergebracht in verschillende volumen, met elk een eigen karakter.

Het gebouw heeft twee voorkanten. De entreezijde richting stad ligt aan het drukste kruispunt van Richmond. Richting de universiteitscampus betreed je het museum via de beeldentuin.

Beide entrees presenteren zich op eigen wijze naar de bezoeker. Aan de tuinzijde opent het museum zich naar de voetgangers. Aan de straatzijde lijken de twee sculpturale volumes tegen elkaar te leunen. Onder de volumes door betreed je door een bescheiden ingang de entreehal. Van binnenuit opent de hal zich met een organische beweging naar de straat.

De vier verschillende galerieën kunnen als op zichzelf staande expositieruimten worden gebruikt, ontsloten door een grote centrale lift en trappenhuis. Samengevoegd kunnen ze ook ruimte bieden aan grotere tentoonstellingen. De betonnen balken en liggers sluiten in materialisatie aan bij de gepolijste betonnen vloeren. Kunst kan worden opgehangen of aan de vloeren bevestigd.

Naast de galerieën bevindt zich in The Markel Center een presentatieruimte voor film, theater, dans en muziek opgenomen. De ruimte verbindt twee verdiepingen, een groot raam zorgt voor een doorkijkje van de galerieën naar presentatieruimte. De warme uitstraling van het bruine kersenhout contrasteert met de frisse sfeer van de expositieruimten.

Thinking field
Het café en de galerie op de begane grond verlenen via grote draaideuren direct toegang tot de tuin. De tuin is bestraat met grind en Arduintegels en beplant met enkele Japanse notenbomen en inheemse vegetatie. Verder bevindt zich in de tuin een grote rechthoekige vijver. De tuin is door Steven Holl Architects tot ‘thinking field’ gedoopt.
Ook de verschillende daken zijn voor het publiek toegankelijk. Op één van de vier dakterrassen bevindt zich een beeldentuin. Op een tweede kunnen wisselende kunstinstallaties worden geplaatst. De daken zijn deels als groendaken uitgevoerd.

Gevel
De gevel is opgebouwd uit mat glas en geprepatineerde zink en titanium beplating. Het doorschijnende glas en de groen-grijze tonen van de beplating zorgen voor een wisselende verschijning. Afhankelijk van het licht oogt het museum als een monolithische of juist een translucente sculptuur.
Veertig procent van de beplating bestaat uit hergebruikt materiaal. Het gebouw wordt in de winter verwarmd en in de zomer gekoeld met aardwarmte, afkomstig uit 43 geothermische bronnen. Het gebouw heeft een ‘LEED Gold’ label voor duurzaam bouwen.









































