Een nieuw zakendistrict was gepland op het terrein met vijftien voormalige fabriekshallen. De hallen die in 1945 tijdens de ‘bevrijdingsoorlog’ gebouwd werden stonden op de slooplijst. Superimpose stelde voor de fabriekspanden te transformeren tot een culturele hub. Het architectenbureau wist de opdrachtgever en regering te overtuigen een groot deel te behouden vanwege de culturele en historische waarde. In 2011 verwierf de opdrachtgever het terrein succesvol tijdens een veiling.
Transformatie
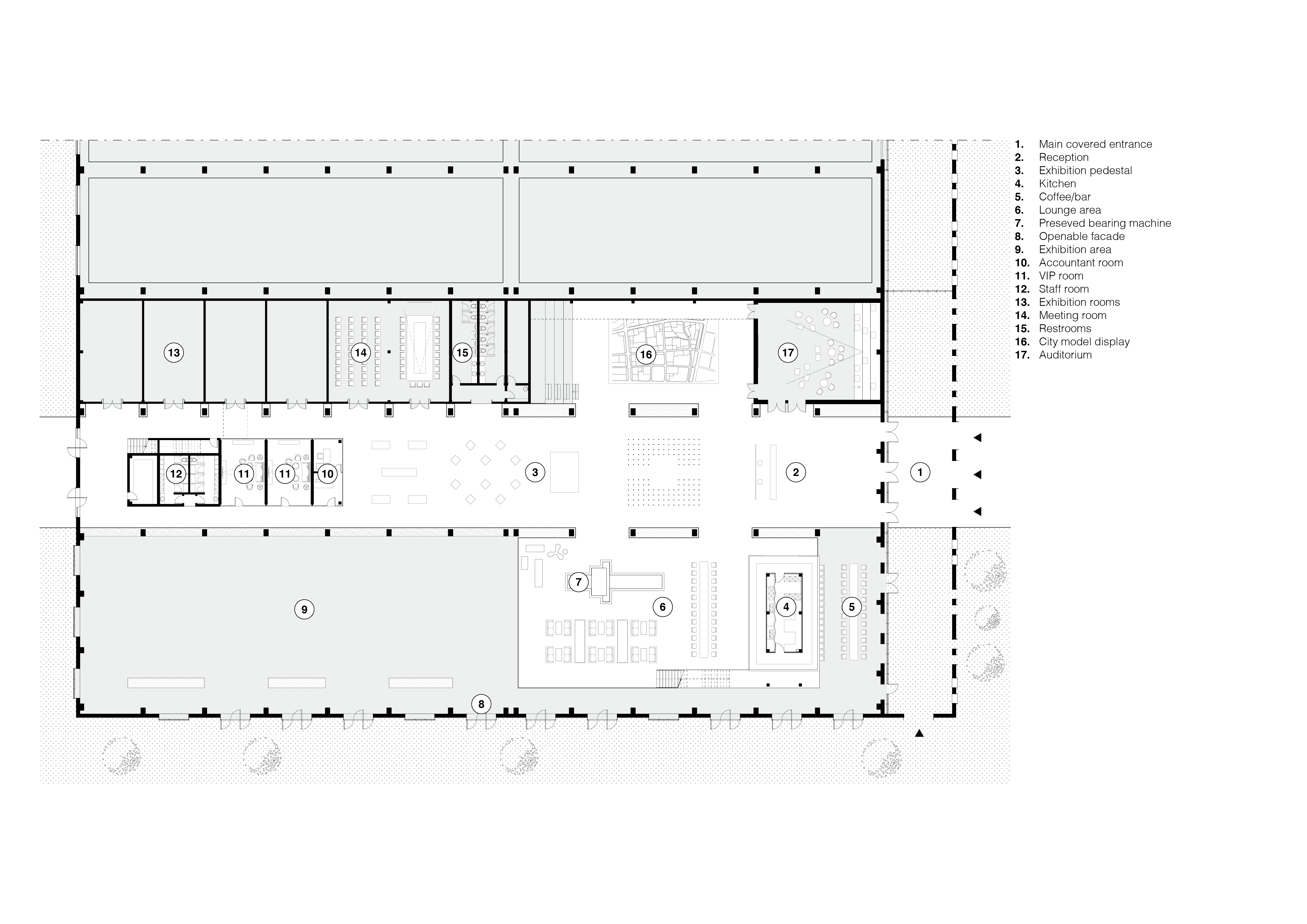
Superimpose ontwierp de transformatie van de grootste voormalige fabriek tot de Changzi City Expo. Het biedt ruimte aan een tentoonstellingsruimte, een vergadercentrum voor de regering, kantoorruimte en een auditorium. Met minimale architectonische interventies herstelde Superimpose de architectonische kwaliteit van het gebouw: de repetitieve dragende raamkozijnen en de ritmische gevelopeningen. Ook de muurschilderingen met propaganda slogans bleven behouden.

Hier en daar werden de robuuste gevels van baksteen aangepast. De door een uitbouw verborgen oostgevel werd weer in het zicht gebracht. De uitbouw bleef behouden, maar alle binnenwanden werden gesloopt. Ook werd de oorspronkelijk oostgevel de entree van het gebouw. De uitbouw ervoor fungeert nu als veranda, overdekt met een glazen dak. Ee raam- en deuropening werden vervangen door open frames.
Het repetitieve karakter van de zuidgevel wordt benadrukt door aluminium kozijnen die iets uit de gevel naar voren komen. Draaideuren creëren voor evenementen een directe verbinding tussen de buitenruimte en expositieruimte.

Expositieruimte
De begane grond van het gebouw is publiek toegankelijk. Door een entresol wordt de dubbele verdiepingshoogte van de fabriekshal benut. Op deze tussenverdieping bevinden zich private werkruimten, de bibliotheek en een gesloten vergaderruimte. Op de begane grond bevindt zich de publiek toegankelijke expositieruimte.
Op de begane grond is boven de bestaande betonvloer een iets verhoogde vloer gemaakt, de ‘catwalk’. Dit pad verbind de westelijke entree met de oostelijke en loopt langs de expositieruimte. Daarnaast verbergt de verhoging de kabels en leidingen, op deze wijze hoefde de bestaande vloer niet opengebroken te worden.

Boven de catwalk hangt aan de stalen balken een sluier van metaalgaas, het volgt het ritme van de constructie. Het gaas dat oogt als hangend textiel contrasteert met het industriële karakter van het gebouw. Het gaas filtert het daglicht dat door het dak naar binnen valt, en geeft de ruime hal een menselijke maat. Lichtarmaturen in en boven het net zorgen ’s avonds voor lichteffecten.









































