De trap ligt als verbindend element centraal in het gebouw. Vanaf de sportruimte tot de bovenste verdieping ontsluit deze alle lagen. Hieraan liggen alle gemeenschappelijke ruimte zoals de community ruimte voor ouders, de bibliotheek, en verschillende open leergebieden met elk een eigen identiteit. “De blauwe trap symboliseert daarbij de loop van een rivier”, zo laat LIAG weten.
foto: Ben Vulkers
Programma
In het ontwerp is rekening gehouden met de leeftijden. Op de begane grond liggen de kinderopvang, basisschool en gemeenschappelijke faciliteiten als de kantine, drama/muziek ruimte. De middelbare school ligt op de tweede verdieping. Half verdiept in de kelder bevinden zich de sportzaal en tevens een parkeergarage. Door de laatste inpandig op te nemen is er meer ruimte op het terrein rond de school.
beeld: LIAG
Terrassen
Naast het schoolplein zijn ook de daken toegankelijk gemaakt. Zo worden een differentiatie aan buitenruimten gecreëerd, zoals de meer beschutte speelruimte op het dak van de parkeergarage. Door het gebouw schuin af te snijden is de zontoetreding geoptimaliseerd. De International School Arnhem is geclassificeerd als Frisse School klasse B. Doordat rekening gehouden is met uitbreiding kan de school groei opnemen.

foto: Ben Vulkers
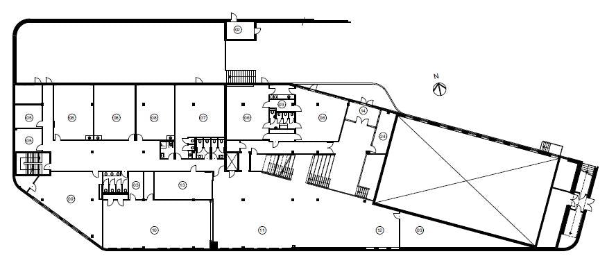
begane grond, voor meer tekeningen zie bijgesloten PDF




