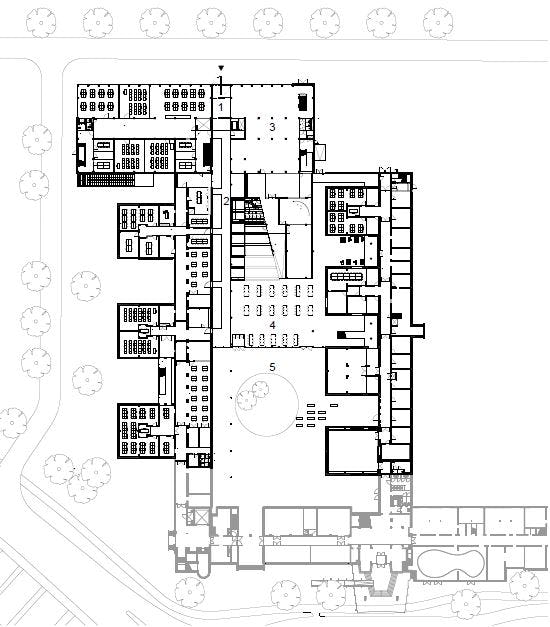
In de twee bestaande, langgerekte gebouwen met een reeks paviljoens is jarenlang fundamenteel onderzoek gedaan. Nu bieden deze plaats aan lokalen en onderwijsruimten van verschillende grootte. De nieuwbouw is met een L-vormige plattegrond tussen deze gebouwen ingeschoven, waarmee ze onderling worden verbonden. Deze verbinding is de basis voor de ruimtelijke opzet, gericht op het creëren van een hechte creative community.
begane grond, zie voor meer tekeningen de bijgesloten PDF
Hart
Vanaf de hoofdingang loopt een commerciële binnenstraat tot in het nieuwe hart. Deze grote multifunctionele hal doet dienst als restaurant, expositieruimte, bijeenkomst- en presentatiezaal. Een oplopende vloer verbindt de begane grond met de verdieping en doet dienst als tribune. De hal kijkt uit over het binnenhof, dat aan de andere zijde wordt begrensd door Plaza Futura, waarmee de school een intensieve wisselwerking heeft.
foto: Joep Jacobs
Licht
“Onder het schoolmotto ‘zien werken, doet werken’, maar ook voor de oriëntatie en een prikkelende, gedifferentieerde ruimtelijke beleving en veel daglichttoetreding is veel transparantie het complex in gebracht.” stelt cepezed. Met lichtstraten worden de bestaande gebouwen gescheiden van de nieuwbouw. Ze behouden zo hun eigen karakteristiek en waarde, maar vormen tevens een samenhangend geheel.
foto: Jannes Linders




