Toelichting Shift architecture urbanism | Beeld René de Wit
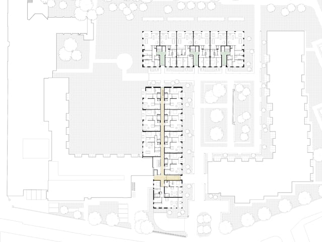
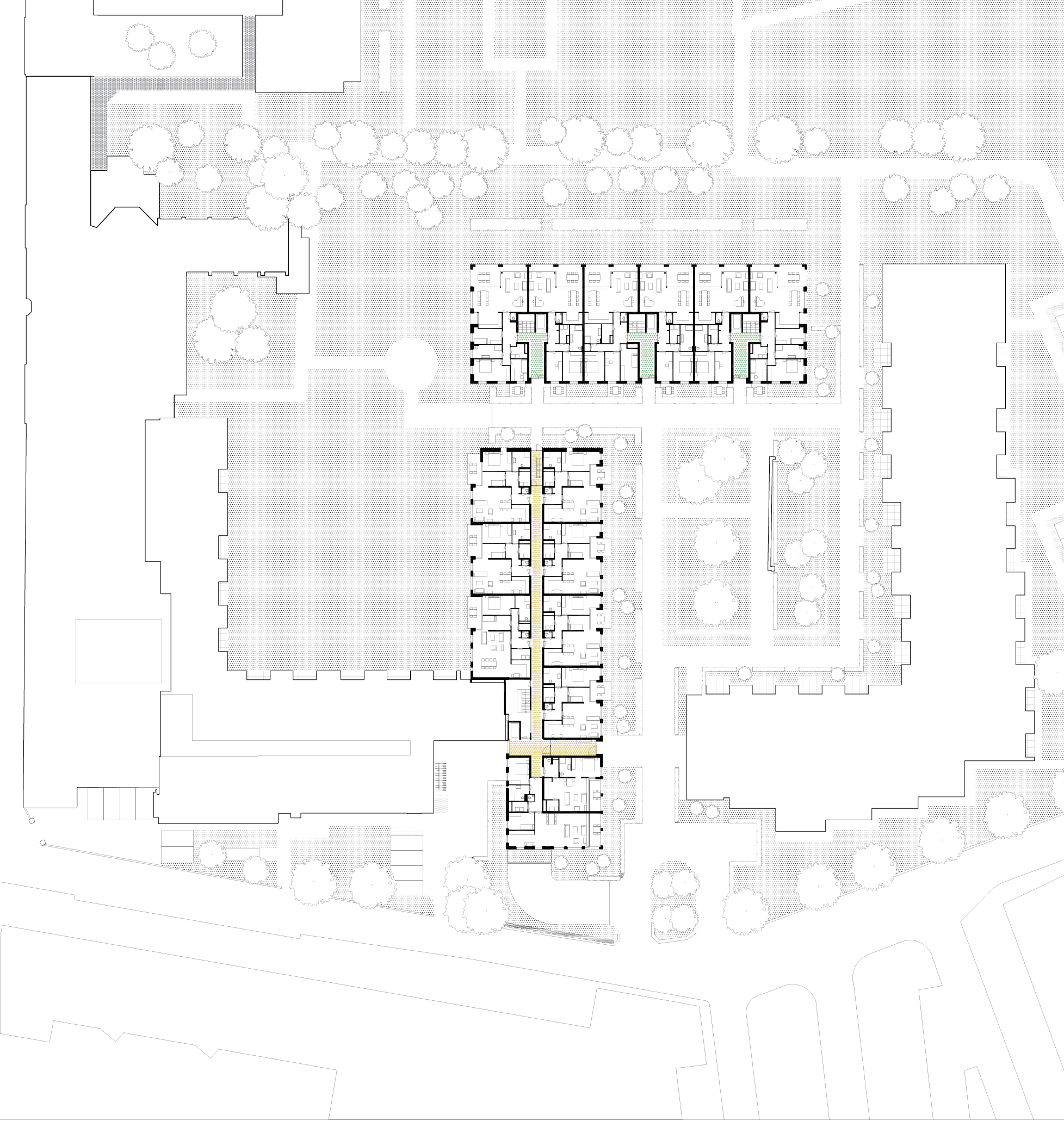
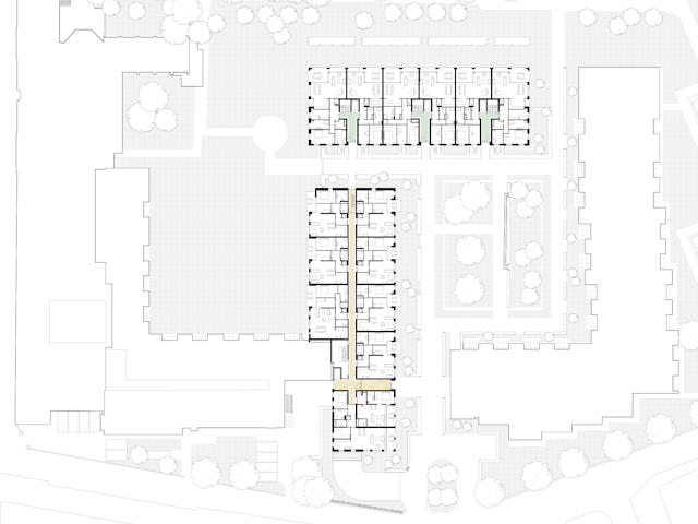
Fase twee bestaat uit een gerenoveerde woonvleugel en twee nieuwe woongebouwen die tezamen een nieuw woonhof definiëren. De nieuwe woongebouwen delen hun architectonische DNA met fase 1 dat in 2020 werd opgeleverd. Hun sobere en subtiel gedifferentieerde baksteenarchitectuur voegt zich naar de historische context zonder te vervallen in pastiche of retro. Het project won recentelijk de architectuurprijs Tilburg.
Het stedenbouwkundige concept borduurt voort op de typologie van de hofbebouwing zoals die terug te vinden is in de voortdurende ontwikkeling van het kloostercomplex sinds haar stichting in 1843. Bestaande en nieuwe gebouwen vormen samen een serie van nieuwe hoven aan de randen van de kloostertuin, elk met een eigen karakter, functie, mate van geslotenheid en mix van bewoners. De nieuwe hoven openen het complex richting de stad zonder het besloten karakter van de kloostertuin, een groene oase midden in de stad, geweld aan te doen. Ze functioneren tegelijkertijd als buffer én stepping-stone tussen stad en tuin.

De nieuwe bouwvolumes nemen de hoogte en korrelgrootte van het bestaande complex over. De nieuwe stedenbouwkundige figuur die de nieuwe bouwvolumes samen met de bestaande bouwdelen maakt, geeft de heldere vorm van de hoven en tuinen voorrang boven die van de losse gebouwen. De gebouwen zijn dan ook niet zo zeer als solitaire bouwdelen vormgegeven, maar eerder als wanden die duidelijk herkenbare hoven en tuinkamers definiëren.
De gevels zijn, conform het stedenbouwkundig concept, ieder op een eigen manier uitgewerkt, afhankelijk van de collectieve buitenruimte die zij definiëren en de gevels van de bestaande bebouwing waaraan zij grenzen. Dit geldt zowel voor de raamverdeling en manier waarop de private buitenruimtes zijn vormgegeven als de detaillering van het metselwerk, de raamneggen en de kozijnen. Wat alle gevels gemeen hebben is de uitvoering in traditioneel metselwerk met dezelfde wasserstrich baksteen met lichte voegen die de tekening van de verschillende metselwerk verbanden versterkt.
De twee nieuwe woongebouwen van fase 2 met in totaal 60 appartementen creëren een nieuw woonhof, samen met een gerenoveerde bestaande westvleugel met daarin 100 appartementen. Dit woonhof opent zich naar de stad en functioneert tegelijkertijd als buffer en toekomstige stapsteen tussen stad en kloostertuin. Beide gebouwen hebben een volledig verdiepte parkeergarage die het mogelijk maakt om het nieuwe woonhof autovrij te maken.
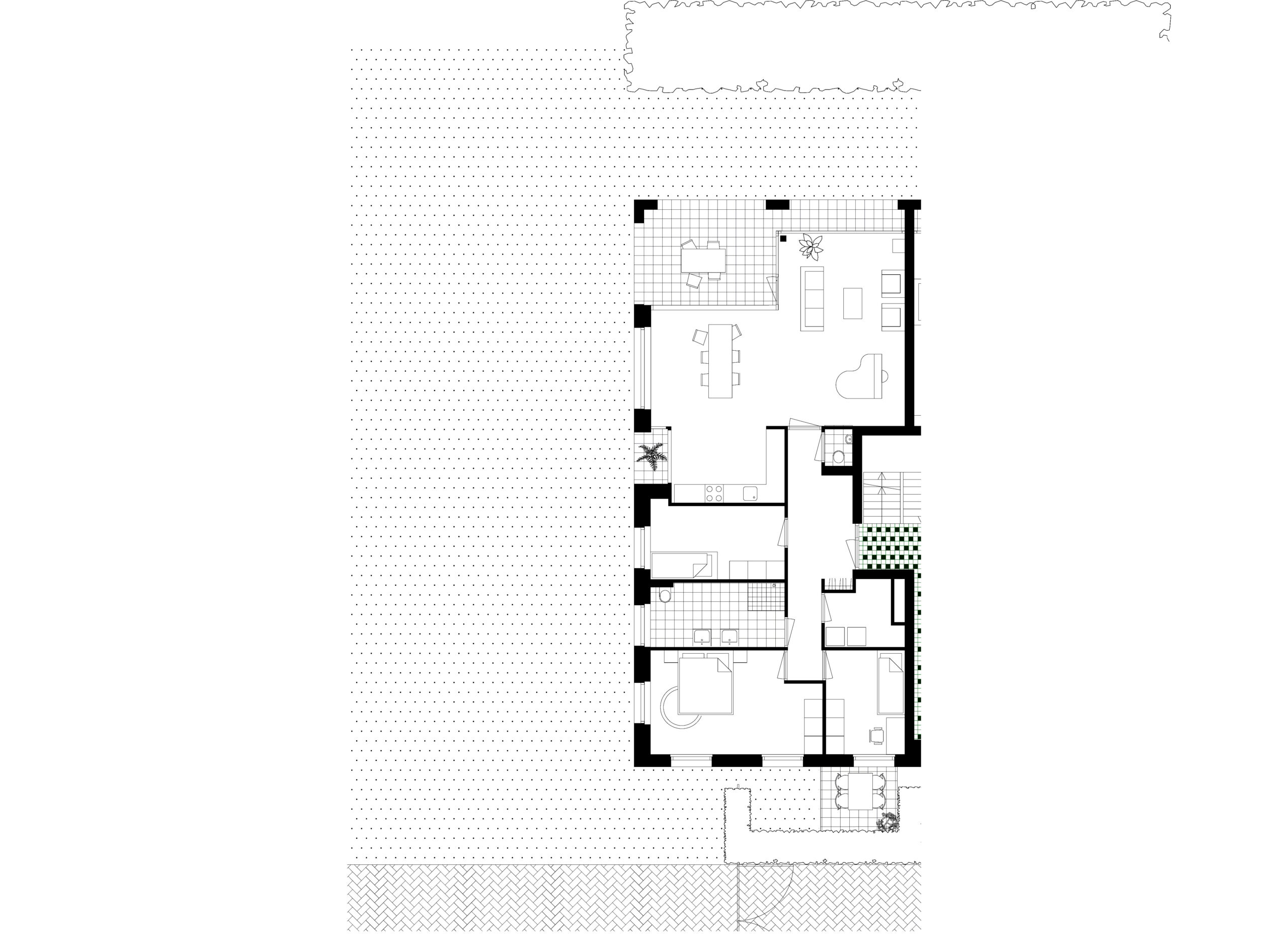
Het noord-zuid georiënteerde woongebouw van fase 2 kent een brede middencorridor met entreenissen en daglicht waaraan 36 driekamerwoningen zijn gesitueerd. De corridor kent een kloostersfeer door de toepassing van betonsteen met grove structuur die tevens de akoestiek oplost. De appartementen zijn voorzien van ruime balkons die deels inpandig en deels uitstekend zijn. Hierdoor krijgen zij langdurig zonlicht en kan er tegelijkertijd beschut worden verbleven.

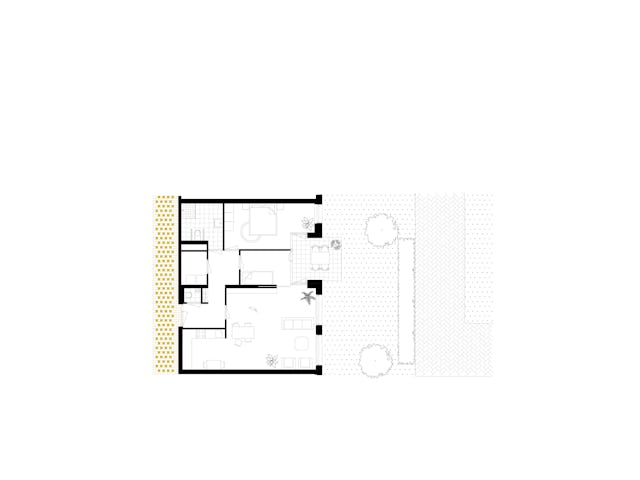
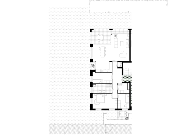
Het oost-west georiënteerde volume wordt ontsloten via een drietal portieken met daaraan twee royale appartementen per vloer, één met standaard vier kamers en één met standaard drie kamers. De voor woningbouw zeer forse beukmaat van 8,6m die in één keer wordt overspannen geeft de bewoners veel indelingsvrijheid. Dit heeft er in geresulteerd dat alle 24 appartementen een unieke plattegrond hebben in dit woongebouw.
De op zuid georiënteerde tuingevel is vormgegeven als een bewoonde kloostermuur. Zij kennen een volledig beglaasde tweede gevel die verdiept ligt achter het metselwerk. Hierdoor wordt er volop genoten van de kloostertuin zonder dat deze wordt toegeëigend. Het wonen doet hier als het ware een stapje terug uit respect voor de meest dierbare plek van de zusters: de kloostertuin.
De tuingevel van fase 2 gaat een sterke formele relatie aan met de tuingevel van fase 1. Tesamen begrenzen zij de kloostertuin en waarborgen haar beslotenheid. Fase 1 werd in 2020 opgeleverd en bevat 40 zorgtoegankelijke appartementen voor de zusters. Dit langgerekte gebouw is verbonden met de stad, het monumentale moederhuis, de kapel, de kloostertuin én de naastgelegen zorgvoorziening. Zij creëert twee nieuwe hoven: een gesloten hof tussen het appartementengebouw en de woonzorgvoorziening en een open hof richting de stad. Het gesloten hof dient als veilige buitenruimte voor de zusters met een psychogeriatrische indicatie in de woonzorgvoorziening. Het open hof richting stad functioneert als entreegebied voor de woonzorgvoorziening en het appartementengebouw.
Fase 2
Fase 1


























































