Toelichting JCR architecten
Goed opdrachtgeverschap en de uitgangspunten voor het programma was de fundatie van het plan. Samen vormgeven aan een woning en met een open blik kijken naar creatieve en specifieke woonwensen die de woning zijn avontuurlijke karakter geeft. Grote uitdaging was dit enorme volume binnen een scherp budget te realiseren. Het casco en de buitengevels zijn door de aannemer gebouwd, daarna is het met een klein bouwteam verder ingevuld. Een belangrijke rol daarin had de meubelbouwer, zorgvuldig geselecteerd om zijn creatief vakmanschap.

De meubels definiëren de binnenkwaliteit, hier is gebruik gemaakt van diverse soorten multiplex. Er ontstaat een pure atmosfeer en een specifieke woonkwaliteit. Door te kiezen voor onbewerkte materialen zoals multiplex, onbehandeld aluminium, prefab beton, en roestvrij staal krijgt de woning een robuuste uitstraling en eigenheid. Hierdoor zijn er ook aanzienlijke besparingen gedaan die het maken van specifieke indelingen van de meubels en een maatwerk trap mogelijk hebben gemaakt.
Ontwerp
Het ontwerp van de woning is een stevig blok met twee gezichten. De voorgevel aan het Audrey Hepburnplein gaat op in het gezamenlijke bouwblok, die verdeeld is in een metalen plint en een bovenbouw van metselwerk. De plint op de begane grond werkt als een grote spiegel, het reflecteert de stad en zijn voorbijgangers en geeft binnen privacy. De B&B op de begane grond is op deze manier centraal gelegen in de stad maar tegelijkertijd gecamoufleerd. De vliesgevel daarboven vormt een XL venster en door de hoogte geeft het een overdadig beeld op de stad en hemel. Het creëert een doorzonwoning waarbij het een directe interactie heeft met zijn omgeving. Passanten die een nieuwsgierige blik naar binnen werpen en tegelijkertijd geconfronteerd worden met zichzelf in een enorme spiegel.

De achtergevel ligt wat verscholen in het woonblok. Om deze hoek te verlichten en een bewuste eigenzinnigheid te geven is de metalen gevel radicaal anders dan de voorgevel. Deze metalen gevel is als een schild die de zon buiten houdt en zijn omgeving verlicht. Een bandraam op de tweede verdieping ligt verscholen achter een geperforeerde gevel, op deze manier blijft de slaapverdieping aangenaam koel. De woning heeft aan deze zijde een kleine ommuurde stadstuin met daarboven een uitkragend terras die uitkijkt op de binnenzijde van het bouwblok.
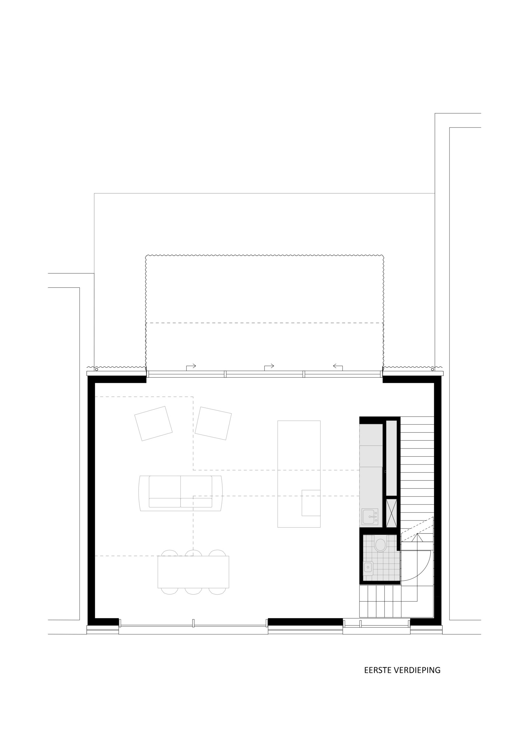
De woning is opgebouwd uit een betonnen prefab casco, waarbij de buitenwanden de vloeren dragen waardoor de ruimtes vrij indeelbaar zijn. Het geeft vrijheid aan het meubel. De ruimtes daarbinnen worden gedefinieerd door de vier meubels. Een B&B meubel op de beganegrond, een trapmeubel over de volledige hoogte van de woning, een hangend meubel in de woonkamer en een slaapmeubel op de bovenste etage.
De stadswoning is een stapeling van diverse belevingen; een spelonk als trappartij die een doorsnede is over de gehele woning,
de dubbele hoogte in de woonverdieping met een loopbrug die door de ruimte kruist en de zeer verschillende blikken op de stad
waarbij de Eusebius kerk prominent in beeld is. Een avontuurlijke woonbeleving ontworpen als één concept.





































