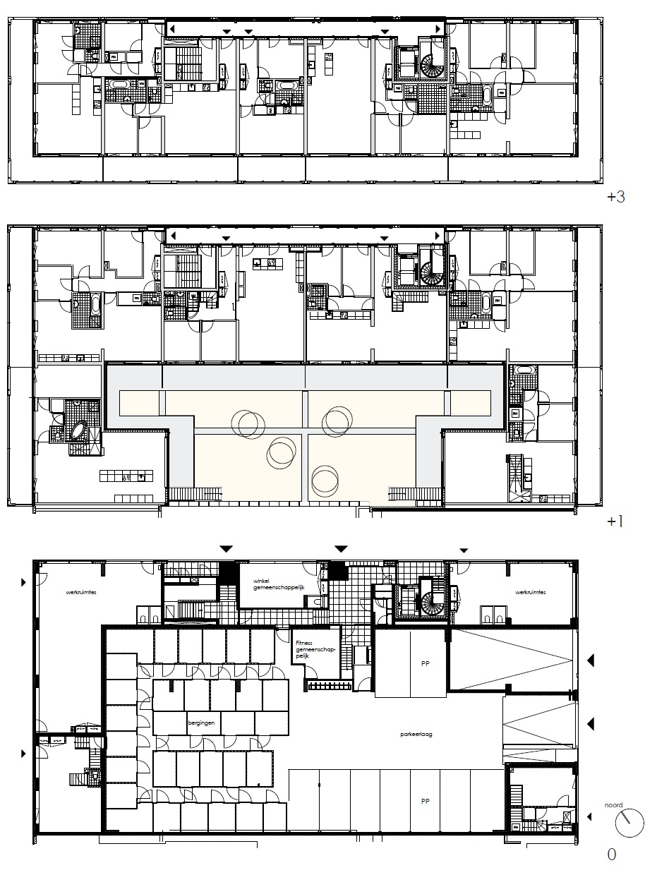
Het duurzame complex [EPC= 0,15] met geluidbelaste gevels en overhoekse, uitkragende balkons, bestaat uit 32 koopwoningen, 3 bedrijfsruimten met een tweelaagse parkeerkelder. Het gebouw staat op Kavel 21 die in crisistijd door de gemeente voor zelfbouw uitgegeven is. Grote buitenruimten en grote raampartijen kenmerken de appartementen die voorzien zijn van 2m diepe, riante balkons [20 tot 60m2], terrassen en grote verdiepingshoge aluminium schuifpuien. Ondanks de hoge duurzaamheidsprestatie heeft het gebouw een transparante uitstraling met grote raampartijen ten behoeve van de woonkwaliteit en overheerst de duurzaamheidstechniek niet het architectonische beeld. Er zijn duurzame, mooi verouderende materialen gebruikt zoals baksteen en geanodiseerd aluminium kozijnen.
Duurzame installaties
Het 100% Klimaatneutrale duurzame gebouw met een lage epc van 0,15, heeft naast zonnepanelen, zonnecollectoren, driedubbelglas en regenwaterbuffering, een voor woningbouw innovatief collectief wtw systeem waardoor energie efficiëntie, lage onderhoudskosten en ruimtebesparing behaald wordt. Er is een grondwarmte WKO-systeem met vloerverwarming en vloerkoeling.
Atelier PUUUR _ PUUUR BSH foto: Luuk Kramer
SmartGrid
Innovatief is dat samen met de buurkavel een SmartGrid voor de warmtepomp opgezet is, voor een hoger rendement, om energie te delen en energiepieken beter op te vangen. Hiervoor is voor de installatieruimte een aparte beheersvereniging opgericht op eigen erfpacht.
Transformerende consumentenvraag: Maatpak ontwerp
De nieuwe consumentenbehoefte is participeren met inspraak op woonbeleving. De woningen zijn allen op maat ingedeeld conform individuele woonwensen. Ook de aantallen en woninggroottes zijn geheel vraaggestuurd tot stand gekomen en zijn niet vooraf bepaald. Als een Tetris spel zijn de units geschakeld en gestapeld op volgorde van inschrijving.
Behoefte aan gedeelde ruimten:
Samen wonen in een appartementencomplex kan meer zijn dan enkel het delen van de lifthal; gemeenschappelijke functies versterken het gemeenschapsgevoel en zijn een meerwaarde voor de woonbeleving. Er zijn 3 gedeelde bewonersruimten, zoals een [mogelijkheid voor] fitnessruimte, een gezamenlijk dakterras op 30 m hoogte en de VVE is eigenaar van een winkelruimte, in te vullen als gemeenschappelijke woonkamer, logeerstudio of koffiezaak.
Atelier PUUUR _ PUUUR BSH foto: Luuk Kramer
Sociale-, maatschappelijke duurzaamheid
De bouwgroep is een intensief ontwerp- en bouwtraject van zo’n 3 jaar met het bouwteam aangegaan. Op het moment dat de woningen betrokken konden worden, was er een hechte gemeenschap met een buurtgevoel in dit opkomende gebied. In de toekomst kan de woning met extra verdiepingshoogte relatief eenvoudig aangepast worden aan toekomstige woonwensen door de strategische casco opzet; aanpasbaar bouwen is duurzaam bouwen. Kwalitatief hoogwaardige, comfortabele woningen met grote buitenruimten en groene binnentuinen, zorgt dat gezinnen in de stad kunnen blijven. Deze flexibiliteit levert een verscheidenheid aan bewoners op, van starters tot gearriveerden, van jong tot oud vormen een mooie, realistische afspiegeling van de Amsterdamse bevolking.
Transformerende architectenrol; ondernemende architect
Gedurende de crisis heeft Atelier PUUUR opdrachten verkregen door bij positiegunning risiconemend in ontwikkelprocessen in te stappen. PUUUR_BSH is een mede-opdrachtgeverschap [collectieve zelfbouw vorm] initiatief van atelier PUUUR, met een bouwer en de bewoners is vervolgens een samenwerking aangegaan.
Bottom-up gebiedsontwikkeling: gemeente achtergrond rol
PUUUR BSH is onderdeel van 6 bouwblokken op kavel 21 die samen één groot superblok vormen van zo’n 150 woningen. Deze groep ontwikkelende architecten hebben zich in de crisis georganiseerd in een vereniging Beleef Buiksloterham ten behoeve van de gezamenlijke gebiedspromotie, verkoop en bouwkundige afstemming en de circulaire stad discussie. In crisistijd werd door deze groep architecten een grootschalig duurzaam superblok en werkgelegenheid gerealiseerd. Een vorm van duurzaam ondernemerschap.

Dilatatie prefabbeton gevel detail
De prefabbeton gevels met baksteen inleg met grijsgele kleurschakering zijn voorzien van verdiepte schijnvoegen. Dit ornament verhult op een innovatieve wijze de prefab dilataties, zorgt voor massiviteit, is kenmerkend en beeldbepalend voor het ontwerp en vormt een subtiel detail van dichtbij gezien. De in een langere projectmaat gebakken wasserstrich baksteen heeft een unieke kleur door de 4-voudige steensamenstelling. De gevelkaders verspringen op elke verdieping, het geheel krijgt hierdoor een speelse uitstraling en oogt massief en luchtig tegelijk. De plint is opgetrokken uit bruingrijze natuursteen platen en vormt het voetstuk waar het bakstenen volume op staat.
Duurzame productie
Op een vernieuwende wijze is een duurzamere vormsteen bedacht met minimaal materiaalverlies. Er zijn vormstenen ontwikkeld waaruit op een relatief eenvoudige wijze twee dikke steenstrippen verkregen konden worden. Een grote holle vormsteen met 2 hoekstenen en een smalle vormsteen waaruit 2 rechte strippen uitgebroken konden worden. In combinatie met dubbelzijdig gebruik van zowel voor- als achterzijde van de steen leidde dit tot een duurzame productie.
PUUUR BSH is genomineerd voor de NEPROM-prijs 2017 voor gebiedsontwikkeling.




