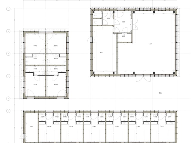
De drie afzonderlijke gebouwen, met in totaal tien gastenkamers en een eetzaal, zijn geplaatst op de bestaande fundering en volgen de contouren van de oude stal. Door de verdeling in drie volumes ontstond een open erfstructuur met uitzicht over het omliggende landschap en een gezamenlijk binnenplein.
Voor de bouw is 160 kubieke meter lokaal geoogst douglashout gebruikt, afkomstig van landgoed Slangenburg, waar het retraitecentrum is gevestigd. De gevels zijn bekleed met 14.500 hergebruikte fraké-latten uit een reststroom van houtverduurzamer Platowood. Vloeren, wanden en daken zijn geïsoleerd met 15.000 kilogram stro en miscanthus, geteeld door een collectief van zes boeren uit de regio. Het project geldt als voorbeeld voor een volledig regionale, circulaire bouwketen.
Dankzij het gebruik van lokale materialen en de inzet van de opdrachtgever als hoofdaannemer bleven de bouwkosten beperkt. The Place to Be toont volgens Overtreders W dat duurzaam en biobased bouwen ook binnen een kleinschalig budget haalbaar is.






















