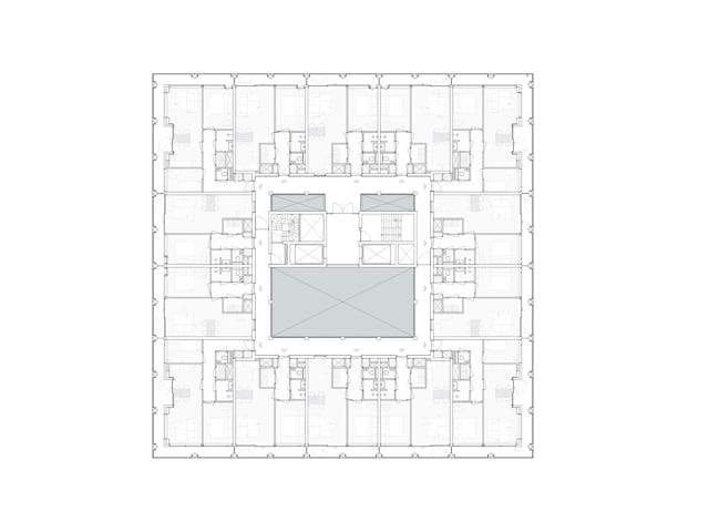
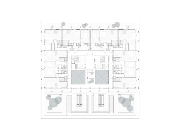
De compacte woningen zijn efficiënt ingedeeld en beschikken allemaal over een eigen buitenruimte, zoals een balkon met uitzicht op het water. De woningen zijn rondom een atrium geplaatst, dat in verbinding staat met het water en een gemeenschappelijk dakterras. Deze opzet stimuleert ontmoetingen tussen bewoners en bevordert sociale samenhang. De plint van het gebouw biedt ruimte voor buurtgerichte functies.
Het gebouw is ontworpen met oog voor detail binnen een prefab bouwsysteem. Zo zijn er ondiepe balkons met gekromde plafonds en slanke, kruisvormige kolommen. De lichte kleur van het beton sluit aan bij de omgeving en geeft het gebouw een herkenbaar uiterlijk. De gevel is in een vroeg stadium ontworpen in samenwerking met de producent, waardoor hoogwaardige afwerking mogelijk werd.
De Louise is gerealiseerd door Ymere, naar ontwerp van De Zwarte Hond. Het project toont aan dat snelle woningbouw mogelijk is met behoud van kwaliteit, functionaliteit en leefbaarheid.

























