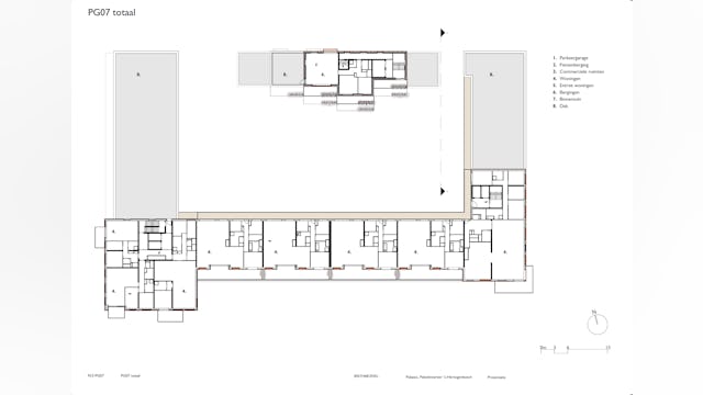
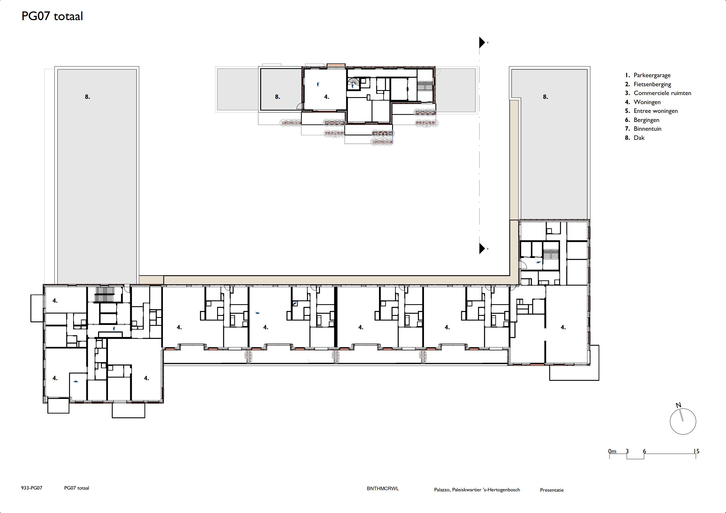
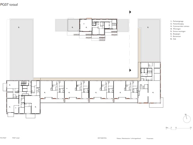
Palazzo telt 233 huur- en koopwoningen, variërend van studio’s tot grotere lofts. Het gebouw is opgezet als één geheel waarin alle bewoners vergelijkbare licht- en uitzichtkwaliteit hebben. De gevel bestaat uit metselwerk in drie kleuren, afgewisseld met keramische elementen op plekken waar het gebouw direct aan de stad grenst. Zo krijgt vooral de noordzijde een opvallende uitstraling. Met Palazzo komt het Paleiskwartier tot voltooiing, waarbij het ontwerp volgens de architecten zowel aansluit bij het bestaande ensemble als een nieuwe impuls aan het gebied geeft.
Zo is aan de zuidzijde de gevel teruggelegd om het Residentieplein meer ruimte te geven. Centraal in deze zijde ligt de Paleispoort, een grote opening die het plein verbindt met de binnentuin. Een brede trap fungeert als toegang, tribune en terras en maakt het gebouw onderdeel van het publieke domein. Hiermee versterkt Palazzo de rol van het plein als ontmoetingsplek en zorgt het voor een open relatie tussen gebouw en omgeving.
In het midden van het blok ligt een binnentuin die is ingericht als een open, groene ruimte. Door het noordblok los te maken van het carré valt er meer daglicht binnen en ontstaat een lichte binnentuin die toegankelijk is voor bewoners. Het groen loopt via terrassen en geïntegreerde plantenbakken door naar de hogere verdiepingen, waardoor een visuele verbinding ontstaat tussen binnen en buiten. De tuin fungeert als gezamenlijke buitenruimte waar bewoners kunnen verblijven of wandelen.

























