De bakstenen gevel verwijst met een onregelmatig patroon naar binaire codes; een representatie van het digitale onderwijs. Het reliëf van de staand gemetselde stenen verrijkt de oppervlakte. Onder de strakke Accoya houten luifels duiden de schuine gevelvlakken op de vrije indeling van de plattegrond. Tegelijk reduceren de knikken de schaal van de buitenruimte.

Vloeiende ruimte
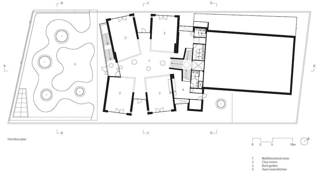
De klaslokalen liggen als losse volumes aan een grote multifunctionele ruimte. Door grote vouwwanden zijn deze volledig te openen en lopen de lesruimtes vloeiend in elkaar open. De kinderopvang met bibliotheek is hieraan geschakeld en heeft tevens een open opzet. Aan de andere zijde ligt de gymzaal, die tevens door derden gebruikt kan worden. Vanwege de verschillende compartimenten is het gebouw toekomstbestendig.

begane grond. Voor meer tekeningen zie bijgesloten PDF
Duurzaam
Naast de binnenruimten kan ook in de schooltuinen en op de daktuin les worden gegeven, waarvan het onderwijs over milieu en natuur profiteert. Bovendien wordt het groen ook doorgetrokken in het interieur. De planten zorgen mede voor een gezond klimaat in de energieneutrale school. Mede door het effectief ventilatiesysteem en de LED verlichting valt IKC De Geluksvogel onder Frisse Scholen Klasse A.

Verder lezen
Architect Misak Terzibasiyan schreef eerder de blog Architectuur beleven, waarin hij ingaat op IKC De Geluksvogel




